1к квартира шосе Наддніпрянське 2А

  • Голосіївський район шосе Наддніпрянське 2А
  • Код: SF-3-239-015
  • Добавлено: 11.11.2025
  • Додати в обране
Тип ринку
Первинний ринок
Вулиця
шосе Наддніпрянське 2А
Кількість кімнат
1
Поверх
15 Поверх
Поверховість
26 поверховий будинок
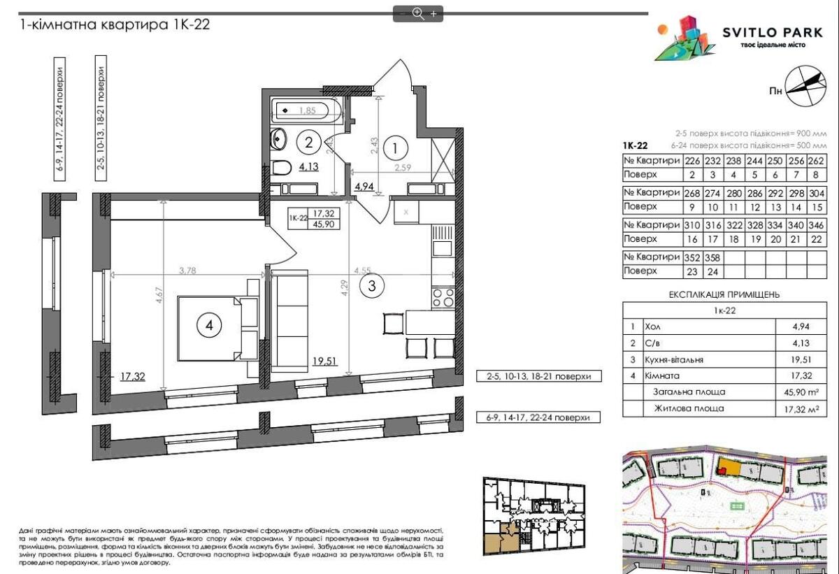
Загальна площа
45 м2
Загальний стан
Без ремонту
Ціна:
2 935 833 грн.
70 000 USD
  • AXIS Real Estate
  • AXIS Real Estate
  • AXIS Real Estate
Опис об'єкту

ЖК Svitlo Park, 1 кімнатна квартира. Квартира великого метражу, простора. Кухня-вітальня з двома панорамними вікнами - 19,51 м2, спальня також має два панорамні вікна -17 м2 та коридор з нішею під шафу-купе чи гардероб. Стан - після будівельників. Виконані всі чорнові роботи. Вікна засклені, встановлені вхідні двері - металеві, надійні та стильні, не потребуютьь заміни. Виконана стяжка підлоги під лазер, під стяжкою розведено водопостачання ,опалення, підключено радіатори з терморегуляторами.

Додаткова інформація

Схожі пропозиції