1к квартира пр-т Московський 2Д

  • Оболонський район пр-т Степана Бандери 2Д
  • Код: SF-3-122-509
  • Добавлено: 25.04.2025
  • Додати в обране
Тип ринку
Первинний ринок
Вулиця
пр-т Степана Бандери 2Д
Кількість кімнат
1
Поверх
15 Поверх
Поверховість
26 поверховий будинок
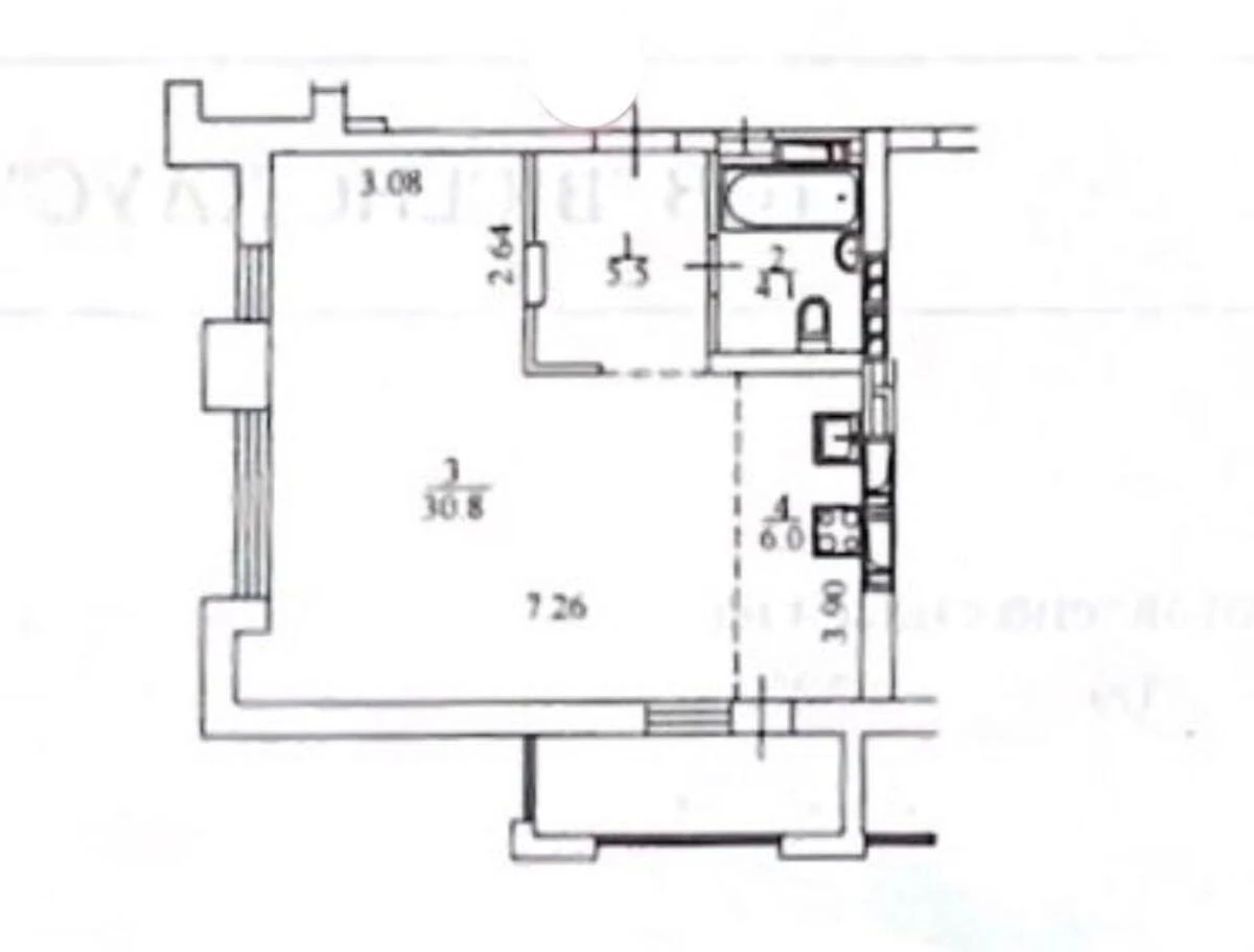
Загальна площа
50 м2
Загальний стан
Без ремонту
Ціна:
3 591 535 грн.
85 000 USD
  • AXIS Real Estate
  • AXIS Real Estate
  • AXIS Real Estate
Опис об'єкту

ЖК Dock32, 1 кімнатна квартира. З функціональним плануванням: окрема спальня, кухня-вітальня та просторий передпокій. Виконане перепланування, залита стяжка підлоги, зроблені штукатурні роботи. У наявності професійний дизайн-проєкт із розміщенням меблів і техніки, що дозволяє легко реалізувати сучасний інтер'єр. Висота стелі — 2,7 м, забезпечує додатковий об’єм і простір. Будинок новий, введений в експлуатацію у 2022 році, збудований за монолітно-каркасною технологією, стіни з керамзитоблоку товщиною 250 мм, фасад утеплений мінераловатними плитами та оздоблений штукатуркою. Встановлено якісні металопластикові вікна Rehau. У під’їзді — консьєрж, система охорони та відеоспостереження. Є сучасний підземний паркінг з ліфтом, а також місця для тимчасової парковки й розвантаження авто. Для мешканців облаштована спільна зона відпочинку на стилобаті. Територія комплексу закрита, облаштована дитячим майданчиком та зонами для відпочинку. Локація поєднує зручність центрального розташування з близькістю до природи — набережна та парк Наталка знаходяться у кількох хвилинах ходьби. Поруч — ТРЦ Блокбастер, метро Почайна й Поштова площа, зручний доступ до Подолу та центру міста.

Додаткова інформація

Схожі пропозиції