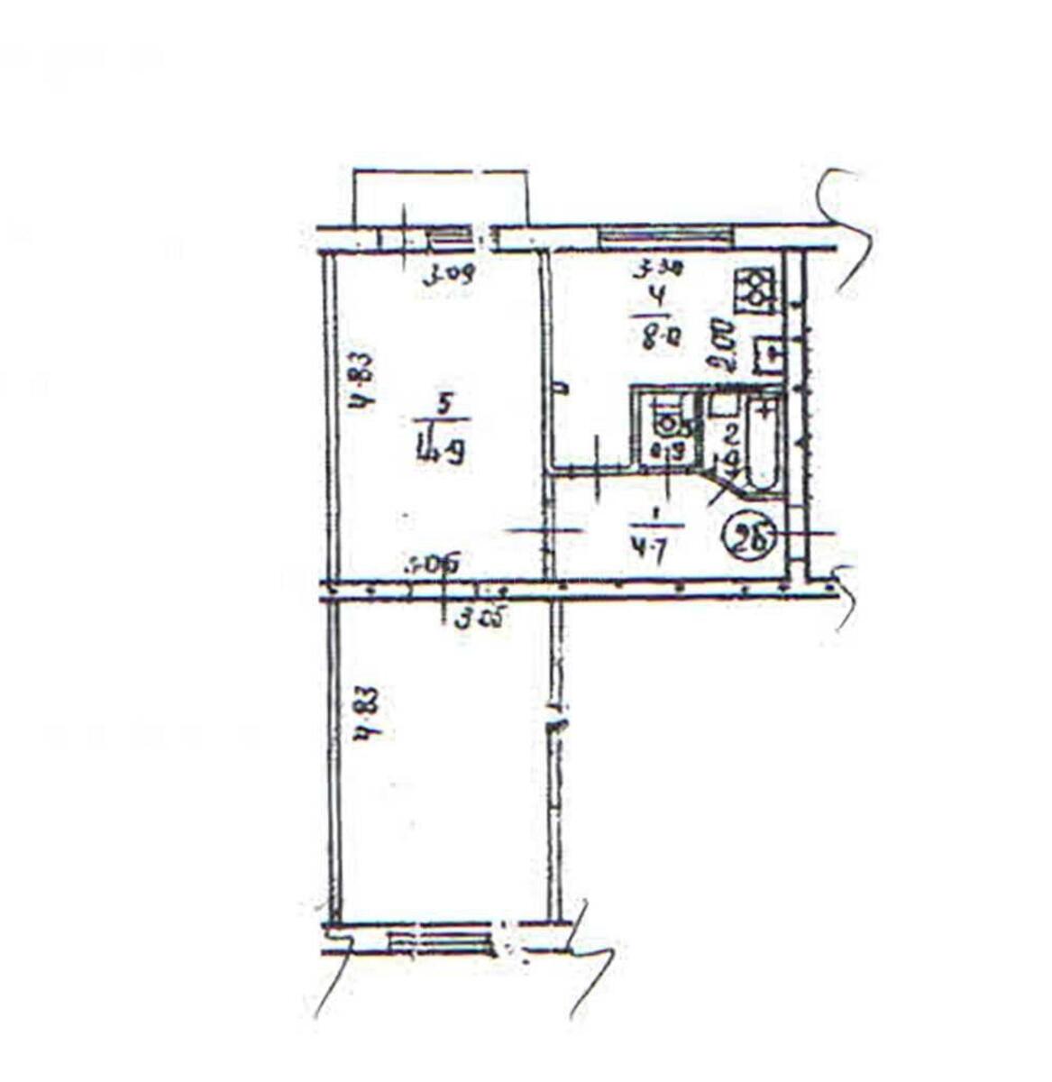
1к квартира пр-т Берестейський 7Б

  • Шевченківський район пр-т Берестейський 7Б
  • Код: SF-3-236-506
  • Добавлено: 06.11.2025
  • Додати в обране
Тип ринку
Вторинний ринок
Вулиця
пр-т Берестейський 7Б
Кількість кімнат
1
Поверх
2 Поверх
Поверховість
5 поверховий будинок
Загальна площа
45 м2
Загальний стан
З ремонтом
Ціна:
8 160 231 грн.
193 000 USD
  • AXIS Real Estate
  • AXIS Real Estate
  • AXIS Real Estate
Опис об'єкту

2 кімнатна квартира. Студія з елітним ремонтом у серці столиці, світла та затишна, ідеальна для тих, хто цінує комфорт, стиль та якість. Після капітального ремонту квартира абсолютно нова, продумана до дрібниць у стилі неокласика преміум-класу. Планування включає студію з простором для вітальні та кухні, окремий санвузол, підігрів підлоги на кухні, ванній, коридорі та балконі. У квартирі встановлено всі необхідні меблі та техніку: холодильник, пральну машину, посудомийну машину, духову шафу, мікрохвильову піч та витяжку. Є електричний камін з функцією обігріву, гардероб та лоджія. Будинок — цегляний кооперативний, 5 поверхів, квартира на 2-му поверсі. Власна котельня забезпечує автономне опалення. У будинку замінені всі комунікації, проведена гідро- та шумоізоляція, встановлена додаткова вентиляція. Територія будинку затишна та безпечна: другорядна лінія проспекту забезпечує тишу, поруч затишний двір, школа, магазини, кафе, ТРЦ та відділення Нової пошти. До метро «Вокзальна» — всього 10 хвилин пішки. Всі умови для комфортного життя та роботи в центрі столиці створені.

Додаткова інформація

Схожі пропозиції