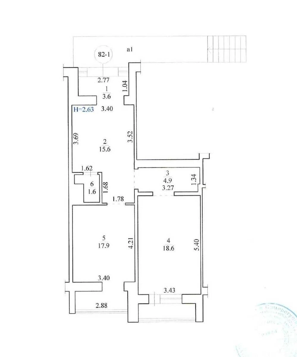
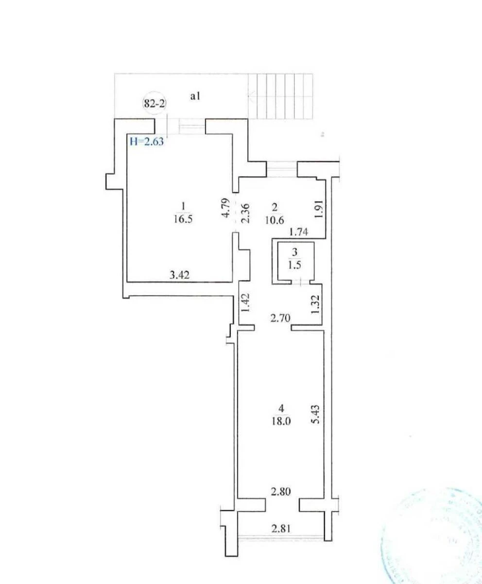
Trade object vul. Myloslavs'ka 39/48, 112m2

  • Desnyanskyi District vul. Myloslavs'ka 39/48
  • Code: SC-224-033
  • Added by: 22.04.2026
  • Add to favorites
Market type
Secondary market
Street
vul. Myloslavs'ka 39/48
Purpose
Trade Premise
Floor
1 Floor
Number of storeys
10 storey house
Total area
112 м2
General state
With repair
Price:
11 473 334 UAH
260 000 USD
Description of the object

Multi-purpose premises. The premises are located on the ground floor of a residential building. High foot and vehicle traffic, with convenient parking. The premises are situated opposite a public transport stop. Excellent visibility from all directions. Nearby are the “Myloslavskyi” shopping centre, the “Koral” shopping centre and a billiards club. Furthermore, the wiring and plumbing have been replaced, air conditioning has been installed, internet access has been provided and much more to ensure full functionality for any business.

Similar offers