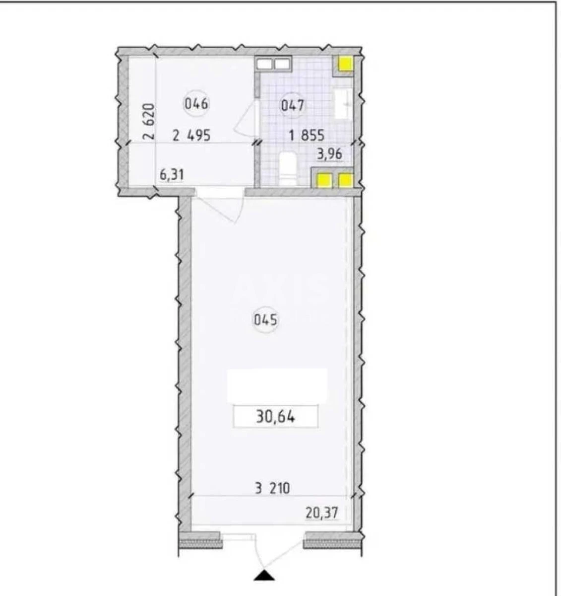
Trade object vul. Myhajla Maksymovycha 24, 31m2

  • Holosiivskyi District vul. Myhajla Maksymovycha 24
  • Code: SC-222-176
  • Added by: 29.04.2026
  • Add to favorites
Market type
Secondary market
Street
vul. Myhajla Maksymovycha 24
Purpose
Trade Premise
Floor
1 Floor
Number of storeys
21 storey house
Total area
31 м2
General state
Without repair
Price:
33 000 UAH
748 USD
Description of the object

ЖК Нова Англія, приміщення вільного призначення. Живий пішохідний трафік цілий день. Сучасний житловий комплекс із тисячами мешканців. Всі комунікації, правильна комерційна планування. ЖК “Нова Англія” — повністю заселений квартал, де стабільно працюють кафе, салони, магазини та сервіси. Тут попит вже є — вам залишилось його забрати.

Similar offers