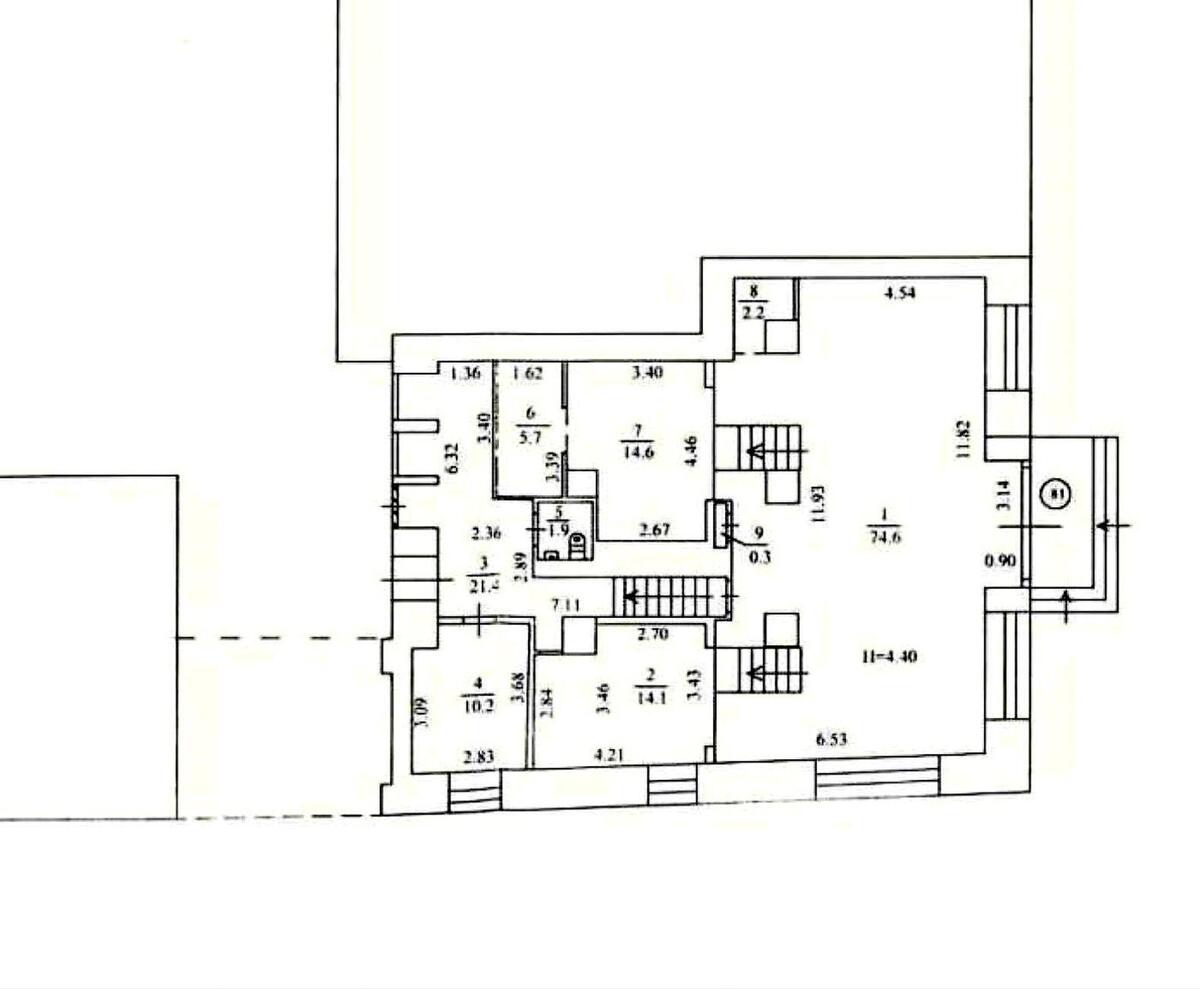
Trade object vul. Ljuterans'ka 3, 145m2

  • Pecherskyi District vul. Ljuterans'ka 3
  • Code: RC-218-856
  • Added by: 04.12.2025
  • Add to favorites
Market type
Secondary market
Street
vul. Ljuterans'ka 3
Purpose
Trade Premise
Floor
1 Floor
Number of storeys
5 storey house
Total area
145 м2
General state
With repair
Price:
100 000 UAH
2 367 USD
Description of the object

The premises are free for use. Corner facade location - maximum visibility from both sides. Presentable facade with panoramic windows - ideal for branding. Only 7 minutes walk from three top metro stations: -Khreshchatyk-Teatralna-Maidan Nezalezhnosti. Nearby are business centers, IT companies, boutiques and premium salons The location is among those with conscious customers with high purchasing power.

Similar offers