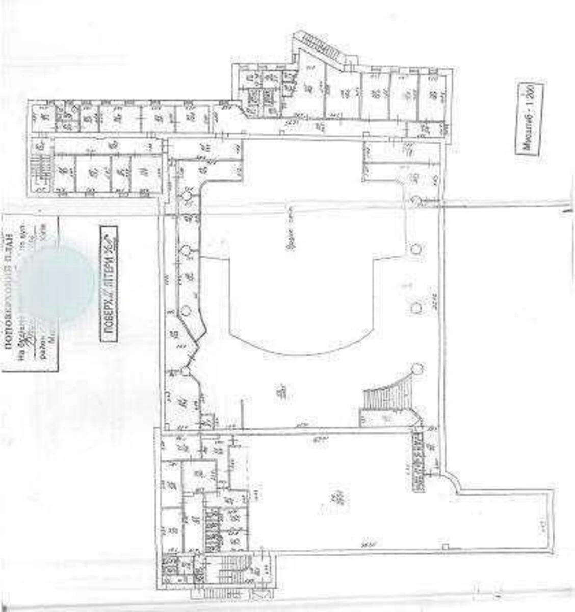
Trade object vul. Kyrylivs'ka 134, 2802m2

  • Podilskyi District vul. Kyrylivs'ka 134
  • Code: SC-224-011
  • Added by: 22.04.2026
  • Add to favorites
Market type
Secondary market
Street
vul. Kyrylivs'ka 134
Purpose
Trade Premise
Floor
3 Floor
Number of storeys
3 storey house
Total area
2802 м2
General state
With repair
Price:
222 565 034 UAH
5 043 600 USD
Description of the object

Multi-purpose premises. All necessary utilities are in place, including 50 kW of electricity. Ventilation and fire alarm systems are installed. A fully operational concert hall (Freedome Hall). Ideal for seminars, training sessions, concerts, exhibitions and much more. Excellent location at the junction of the Podil and Obolon districts.

Similar offers