Trade object vul. Gmyri Borysa 5А, 103m2

  • Darnytskyi District vul. Gmyri Borysa 5А
  • Code: RC-222-825
  • Added by: 22.03.2026
  • Add to favorites
Market type
Secondary market
Street
vul. Gmyri Borysa 5А
Purpose
Trade Premise
Floor
1 Floor
Number of storeys
9 storey house
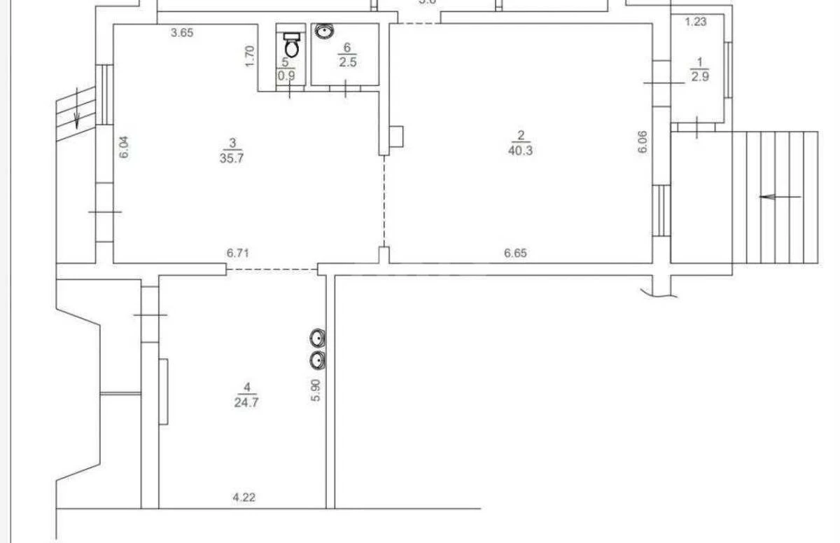
Total area
103 м2
General state
With repair
Price:
680 000 UAH
15 492 USD
Description of the object

Multi-purpose premises. Non-residential multi-purpose premises; for the past five years, it has housed a supermarket belonging to a major chain. Features a loading bay, two separate entrances, and an official contract for 30 kW of electricity (three-phase). The location enjoys good footfall and is situated on the route to Poznyaki metro station. Well-developed infrastructure. Excellent location.

Similar offers