Trade object vul. Demii'vs'ka 13, 80m2

  • Holosiivskyi District vul. Demii'vs'ka 13
  • Code: SC-223-781
  • Added by: 18.04.2026
  • Add to favorites
Market type
Secondary market
Street
vul. Demii'vs'ka 13
Purpose
Trade Premise
Floor
1 Floor
Number of storeys
18 storey house
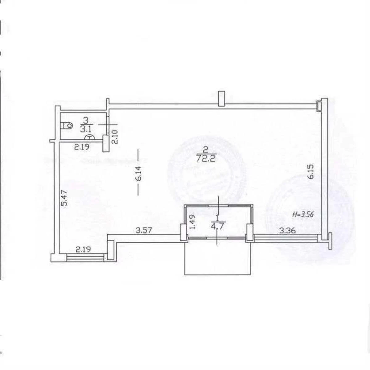
Total area
80 м2
General state
With repair
Price:
10 467 689 UAH
240 000 USD
Description of the object

“Soho Residence” residential complex, premises for commercial use. Separate entrance. Non-residential property. Area: 80 m². Large retail space. The premises have been tastefully refurbished. The Soho Residence residential complex is located in the immediate vicinity of the Central Bus Station, the Holosiivskyi District Administrative Services Centre, the Roshen Factory, the Demiivskyi Market, the Ocean Plaza shopping centre, supermarkets and pharmacies. Excellent transport links, with easy access to the city centre.

Similar offers