1k apartment vul. Sverstjuka Jevgena 4

  • Dniprovskyi District vul. Sverstjuka Jevgena 4
  • Code: RF-2-875-665
  • Added by: 07.03.2024
  • Add to favorites
Market type
Primary market
Street
vul. Sverstjuka Jevgena 4
Number of rooms
1
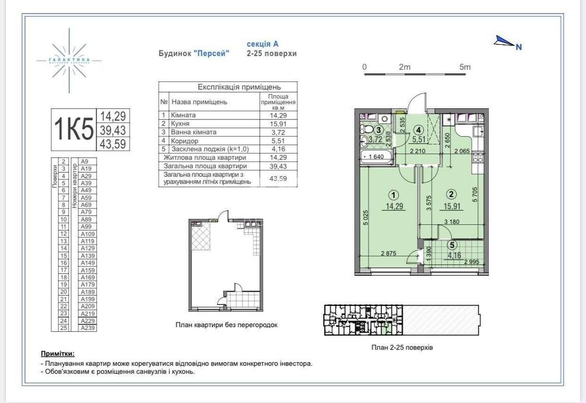
Floor
14 Floor
Number of storeys
25 storey house
Total area
44 м2
General state
With repair
Price:
24 994 UAH
592 USD
Description of the object

RC Galaxy, 1 bedroom apartment. Modern renovation has been completed. Fully furnished. Counters are installed. The format of the apartment: - studio kitchen (sofa bed); - bedroom; - bathroom with bath. Equipment: - air conditioning in the bedroom, dishwasher; washing machine. microwave oven, oven. Developed infrastructure, transport interchange. The residential complex "Galaxy" is primarily attractive for people who appreciate urban comfort, the beauty of the Dnipro, Rusanivskyi Canal and sandy beaches. All the best restaurants, prestigious boutiques, wellness centers, schools and kindergartens, supermarkets and many other facilities are within walking distance.

Similar offers