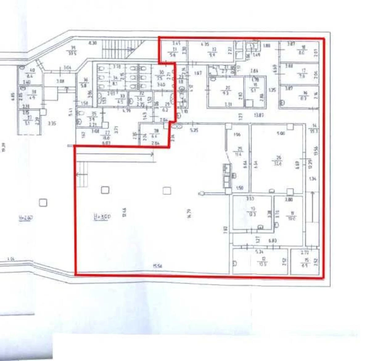
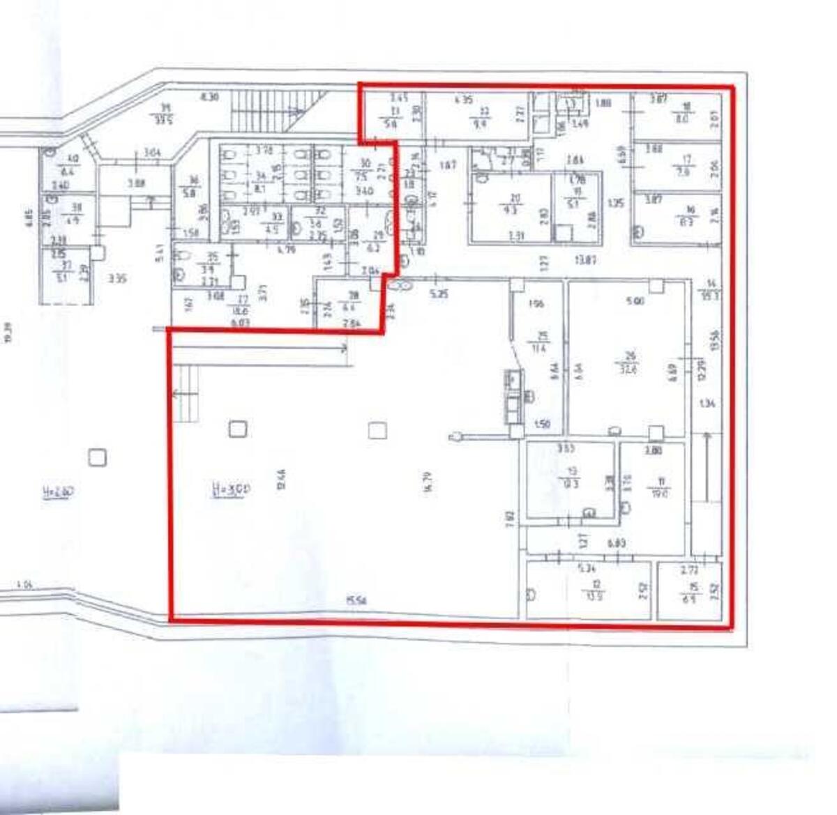
Service object vul. Vasylivs'ka 32, 400m2

  • Holosiivskyi District vul. Vasylivs'ka 32
  • Code: RC-218-259
  • Added by: 24.11.2025
  • Add to favorites
Market type
Secondary market
Street
vul. Vasylivs'ka 32
Purpose
Service Object
Floor
1 Floor
Number of storeys
1 storey house
Total area
400 м2
General state
With repair
Price:
172 000 UAH
4 067 USD
  • AXIS Real Estate
  • AXIS Real Estate
  • AXIS Real Estate
Description of the object

The premises are free for use. The room is located on a safe -1 (basement) level. There is a lift for easy loading/unloading of goods. The premises have been renovated, which makes it ready for use from the first day of rent. Electricity capacity is 70+ kW. Supply ventilation with heating/cooling. Fire alarm system, smoke removal.

Additional Information

Similar offers