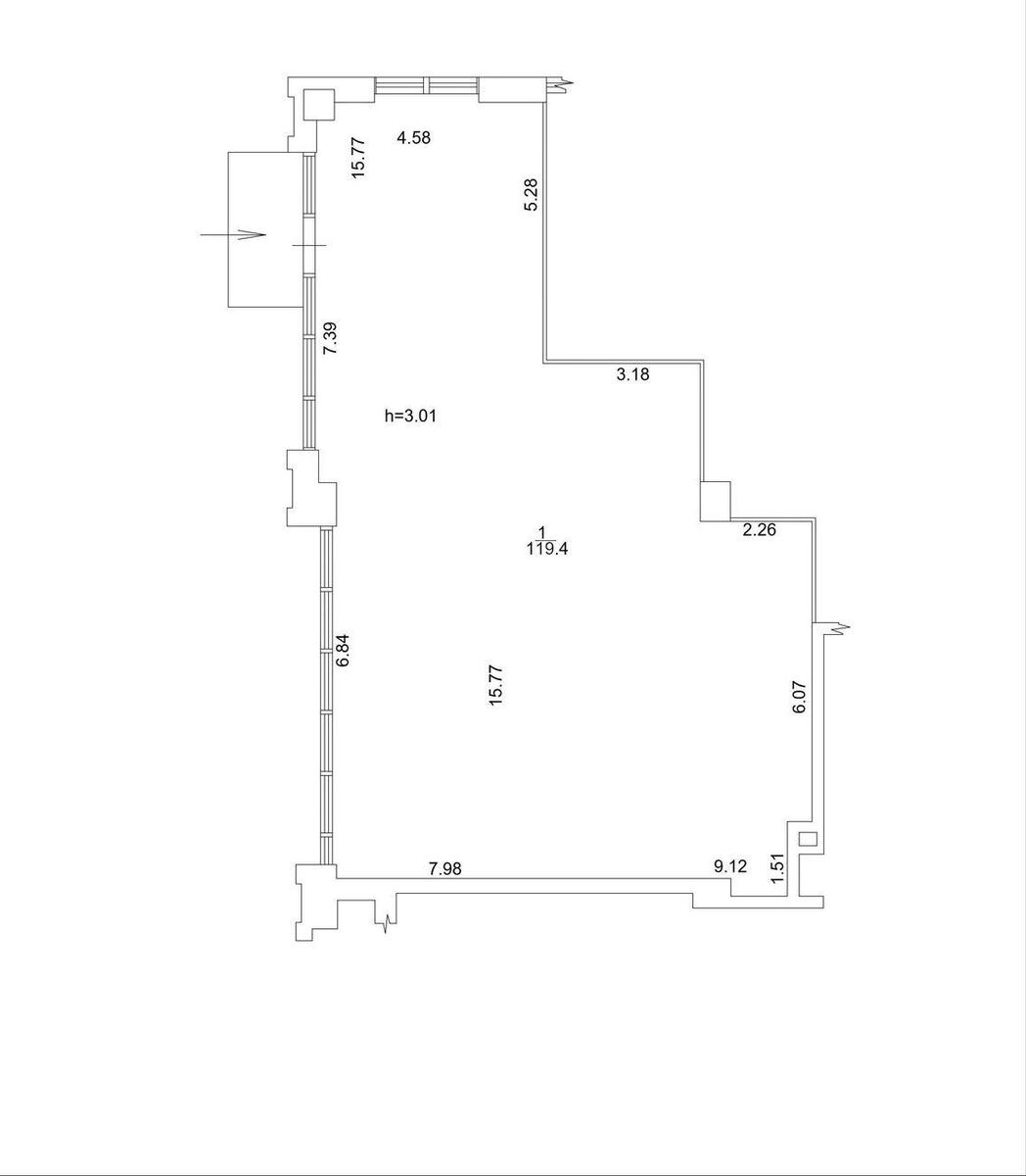
Service object vul. Saperne Pole 5, 198m2

  • Pecherskyi District vul. Saperne Pole 5
  • Code: RC-216-752
  • Added by: 20.10.2025
  • Add to favorites
Market type
Secondary market
Street
vul. Saperne Pole 5
Purpose
Service Object
Floor
1 Floor
Number of storeys
9 storey house
Total area
198 м2
General state
With repair
Price:
210 723 UAH
5 000 USD
  • AXIS Real Estate
  • AXIS Real Estate
  • AXIS Real Estate
Description of the object

Residential complex 'Boulevard of Fountains', free premises. Facade, access to the central fountain, corner room on two sides. 1st floor, 2 separate entrances to the premises, open plan, panoramic windows. Ideal for a shop, cafe, restaurant, showroom, clinic, dentistry, online store, open office. We provide payment holidays for the period of repair.

Additional Information

Similar offers