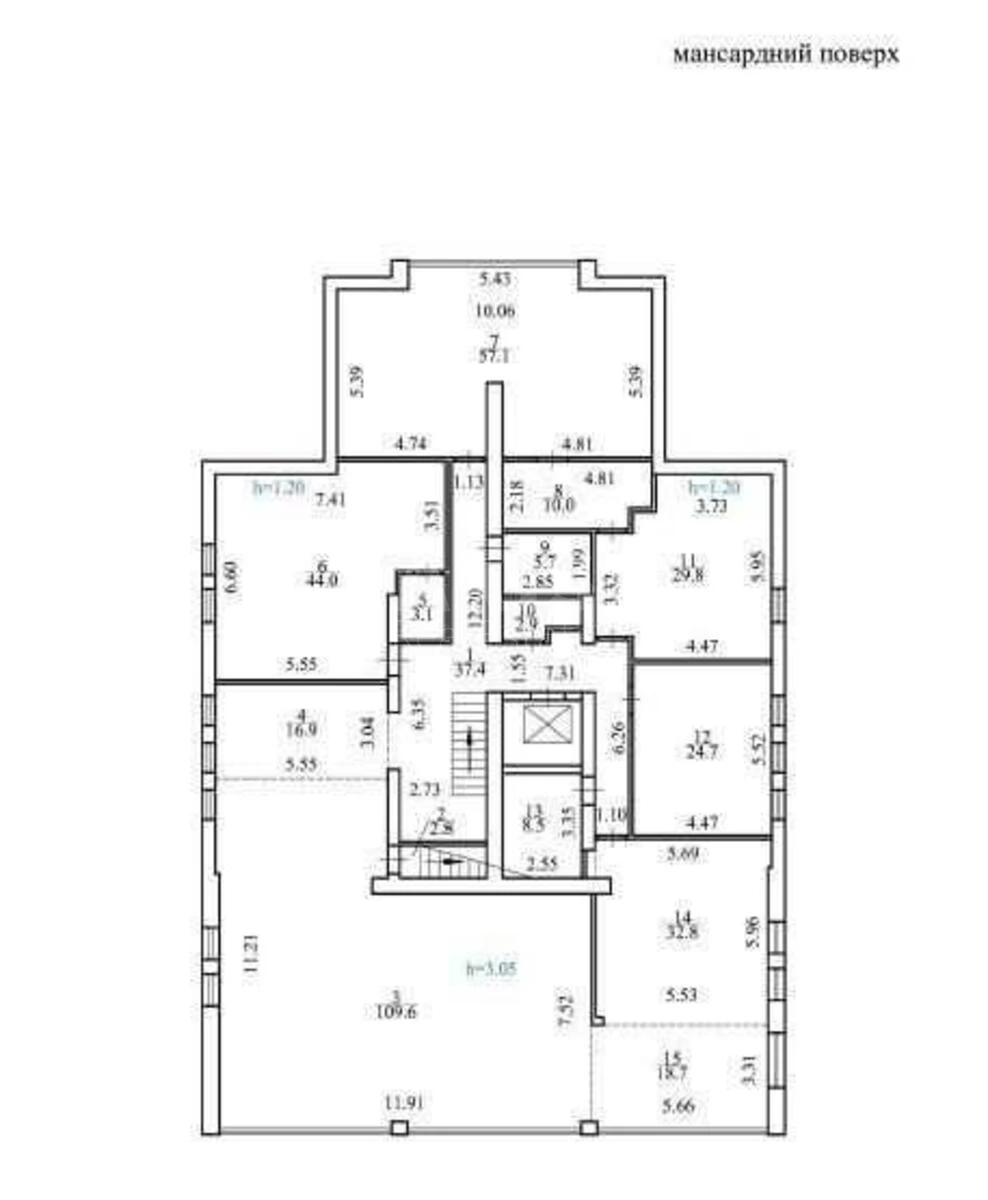
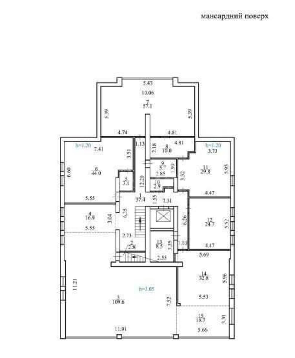
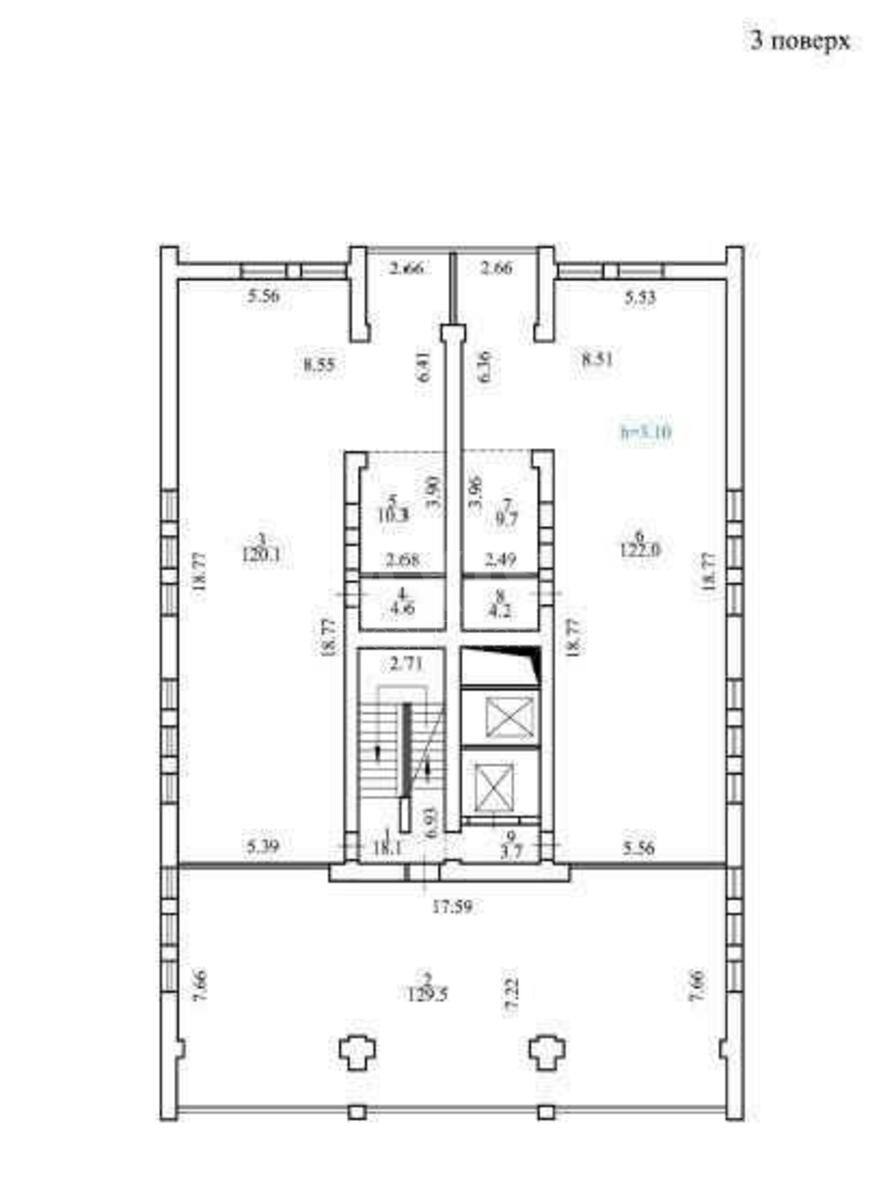
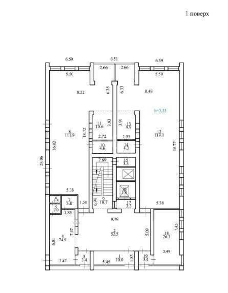
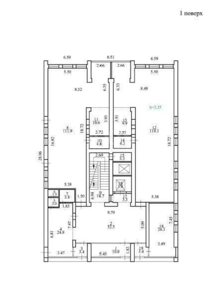
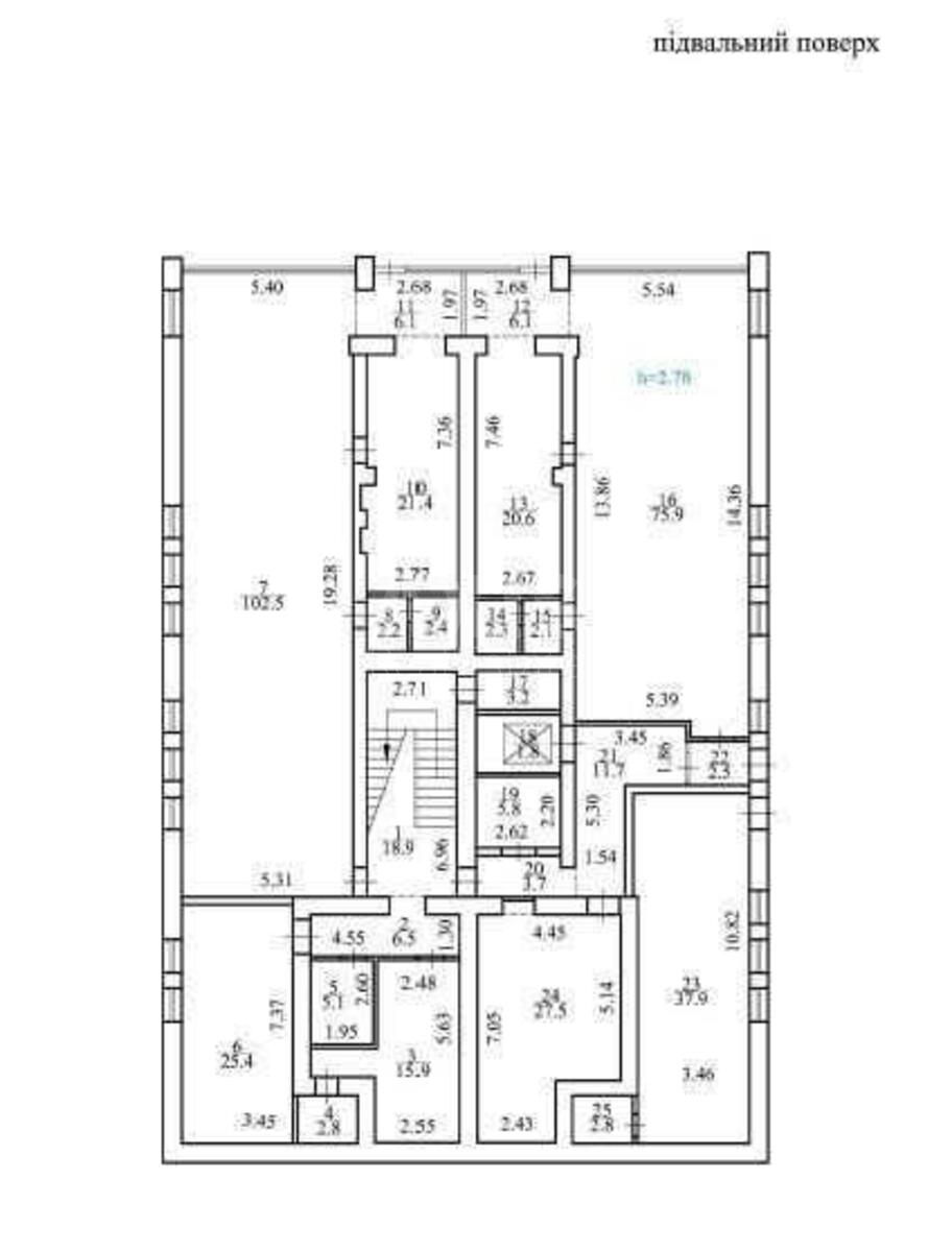
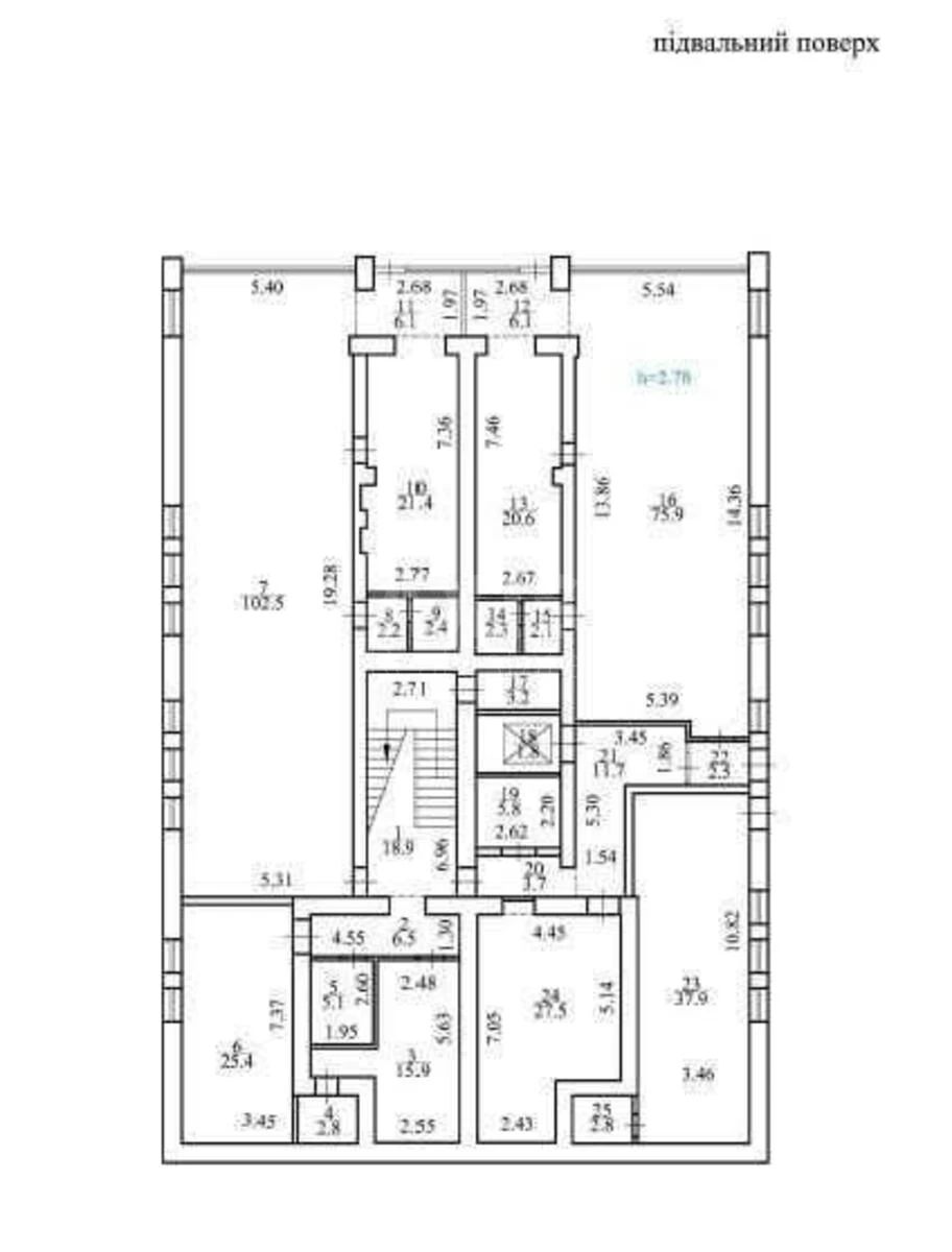
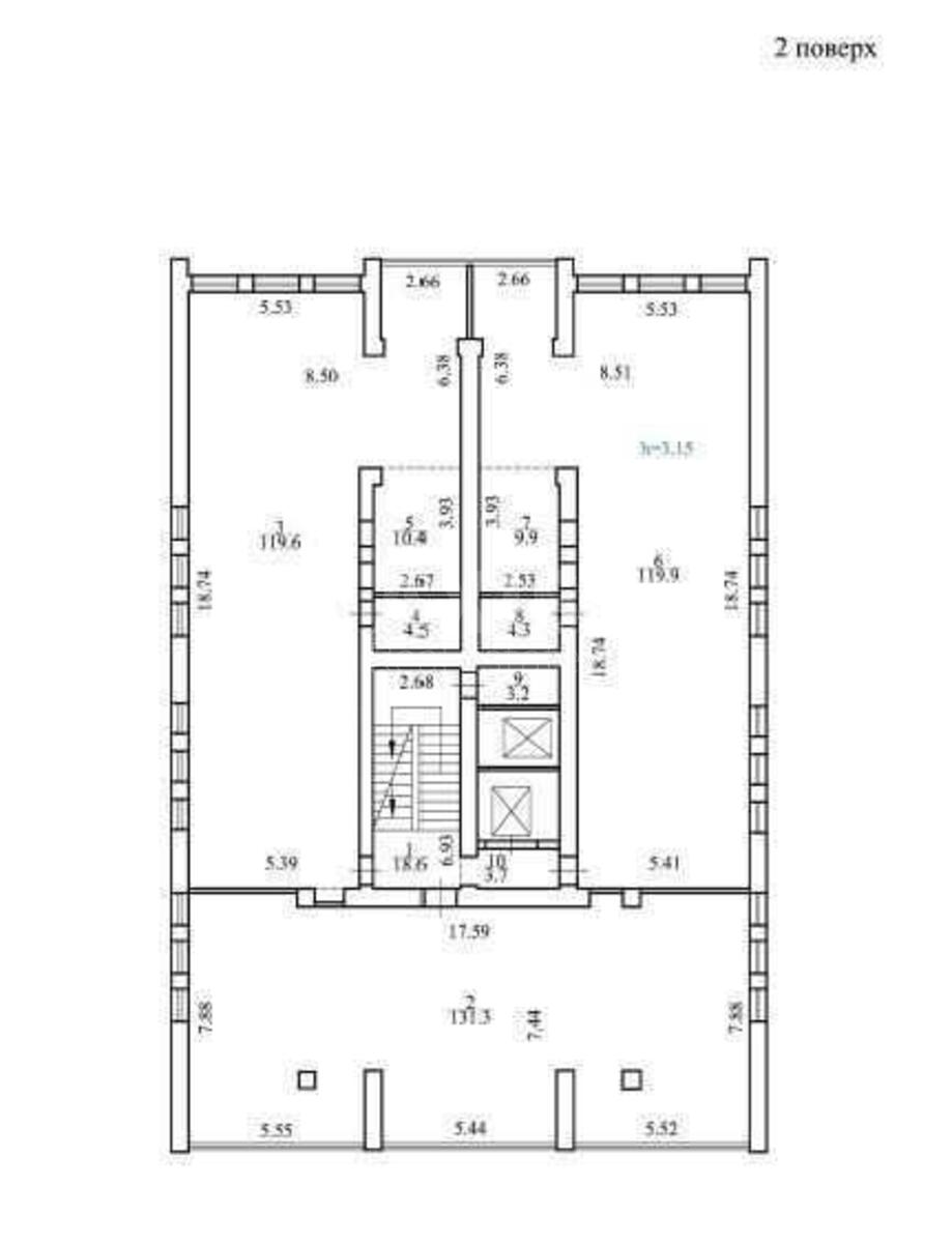
Service object vul. Kryms'ka 1, 2100m2

  • Holosiivskyi District vul. Kryms'ka 1
  • Code: SC-219-916
  • Added by: 31.01.2026
  • Add to favorites
Market type
Secondary market
Street
vul. Kryms'ka 1
Purpose
Service Object
Floor
4 Floor
Number of storeys
4 storey house
Total area
2100 м2
General state
Without repair
Price:
89 925 679 UAH
2 100 000 USD
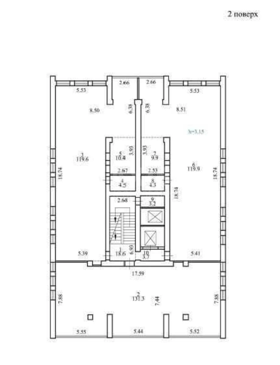
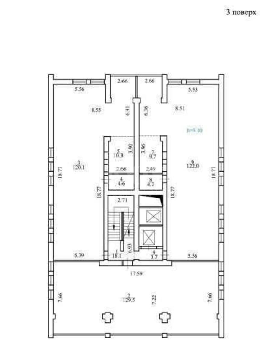
Description of the object

The premises are free for use. There are all necessary communications: gas, electricity 135 kW, water, central sewerage. Heating: autonomous boiler room. Water heating: boiler. The building is insulated, the facade is finished with aluminum panels. Two elevators, maximum load capacity 1000 kg. Fire alarm system. Roof terrace with a total area of 100 square meters.

Similar offers