Sell

All photos (14)
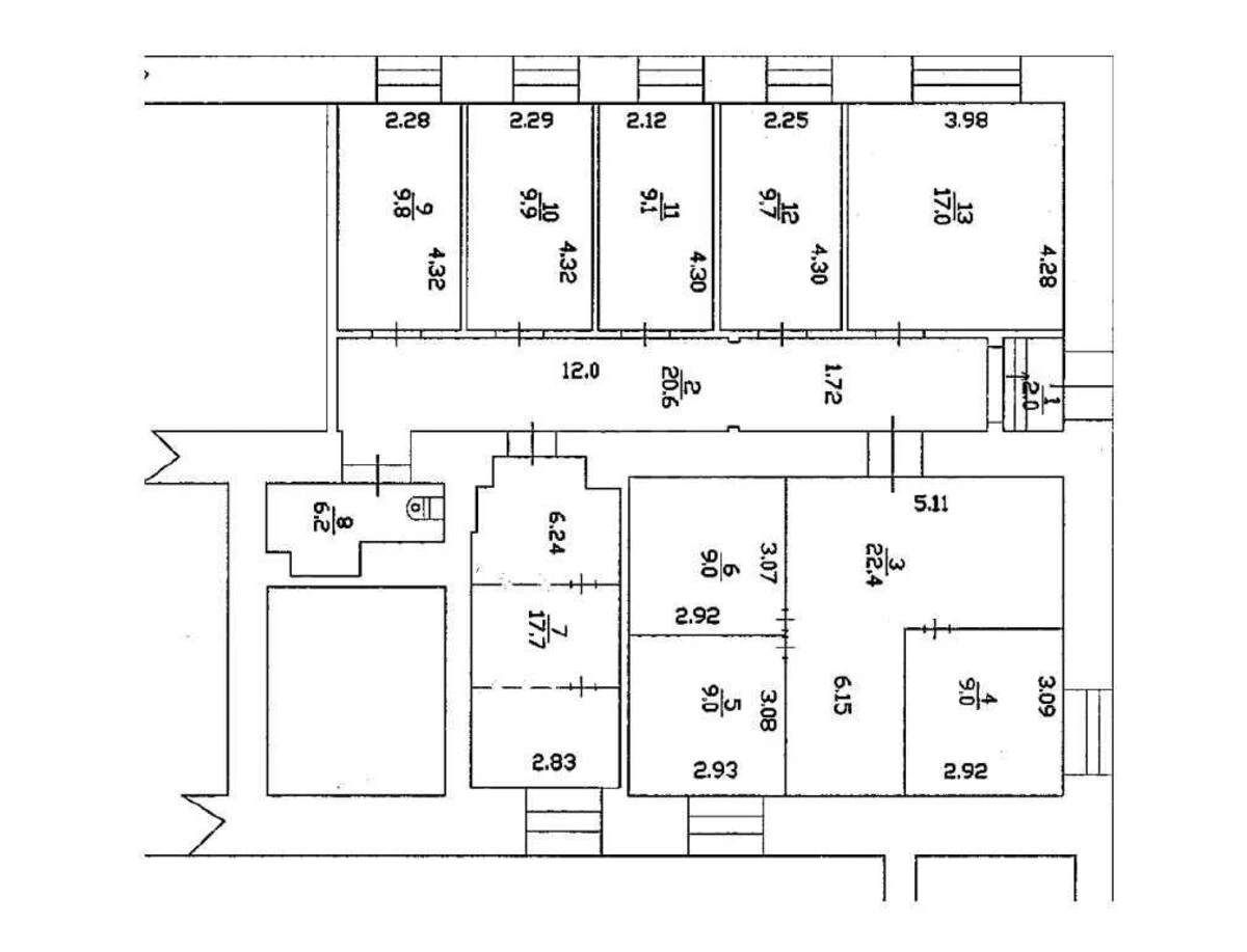
Office vul. Zhyljans'ka 55, 151m2
- Add to favorites
-
Share link
Market type
Secondary market
Street
vul. Zhyljans'ka 55
Purpose
Office Premise
Floor
1 Floor
Number of storeys
4 storey house
Total area
151 м2
General state
With repair
Price:
6 402 385 UAH
155 000 USD
Description of the object
Office space. The entrance group has its own entrance, from the end of the house (from the side of the Diplomat Hall residential complex). The premises are equipped with all vital communications: electricity, water, sewerage, heating, etc. The premises are in need of major repairs. Nearby are the Diplomat Hall residential complex, VARUS grocery supermarket, various shops, cafes, a notary, public transport stops. The location of the premises is characterized by heavy traffic and pedestrian traffic.
Additional Information