Office vul. Vozdvyzhens'ka 45, 150m2

  • Podilskyi District vul. Vozdvyzhens'ka 45
  • Code: RC-223-904
  • Added by: 21.04.2026
  • Add to favorites
Market type
Secondary market
Street
vul. Vozdvyzhens'ka 45
Purpose
Office Premise
Floor
2 Floor
Number of storeys
7 storey house
Total area
150 м2
General state
With repair
Price:
105 500 UAH
2 399 USD
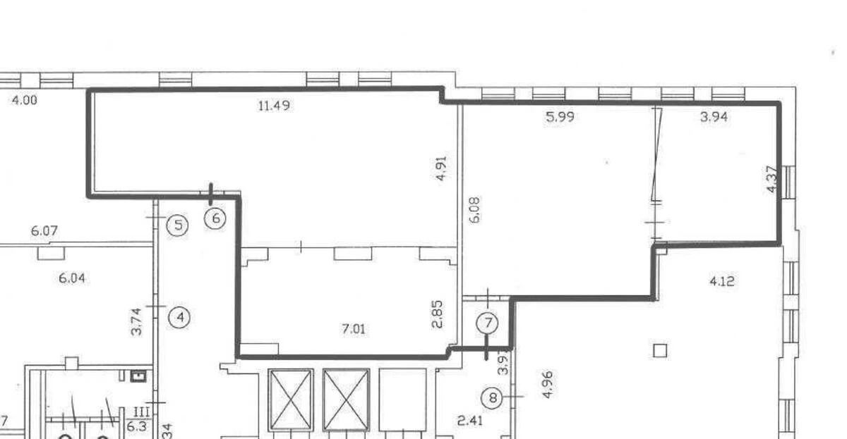
Description of the object

Office space. 2nd floor, refurbished. Layout: 2 open-plan areas + office + kitchen Floor area: 128.9 m², with a common area ratio (1.17) of 150.8 m². Underground car park available for shelter during emergencies. Generator.

Similar offers