Sell

All photos (12)
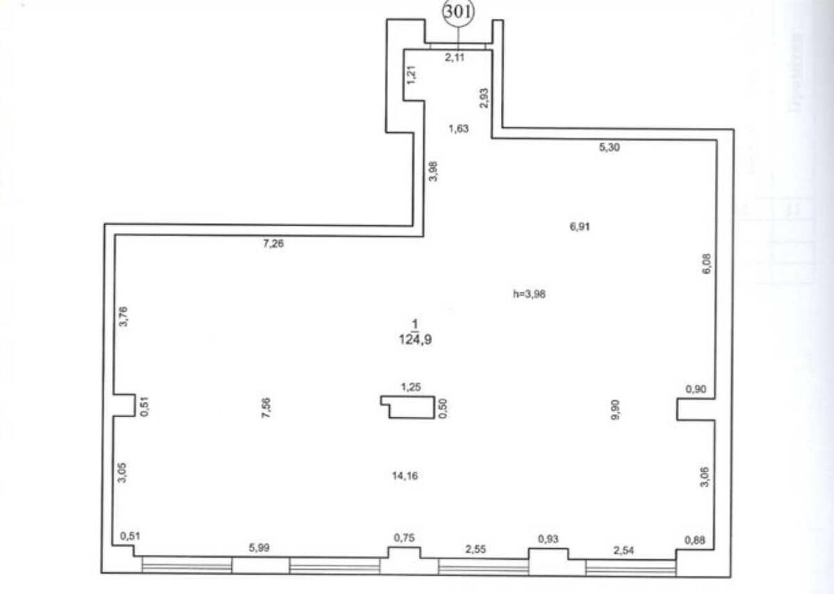
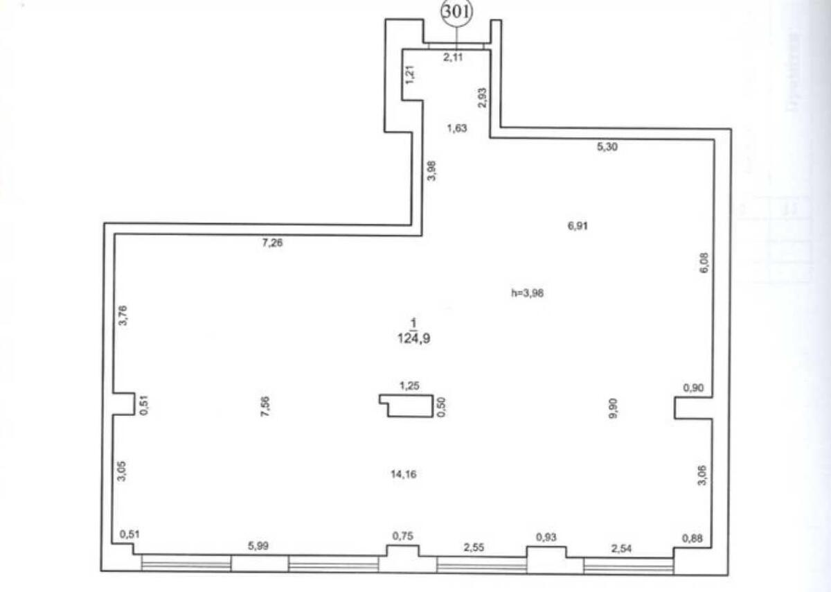
Office vul. Volodymyrs'ka 86А, 125m2
- Add to favorites
-
Share link
Market type
Secondary market
Street
vul. Volodymyrs'ka 86А
Purpose
Office Premise
Floor
3 Floor
Number of storeys
17 storey house
Total area
125 м2
General state
Without repair
Price:
17 520 511 UAH
425 000 USD
Description of the object
Residential complex RESIDENT Concept House, free-use premises. Format: non-residential fund, free planning. Ideal for: showroom, clinic, beauty salon, company office, educational space, gallery or boutique. The building was commissioned in the 2nd quarter of 2024. The ceiling height is 3.98 m. Condition after builders - ready for your project. Separate entrance group for commerce with direct access to the elevator.
Additional Information