Office vul. Tarasivs'ka 16/1, 135m2

  • Holosiivskyi District vul. Tarasivs'ka 16/1
  • Code: SC-221-183
  • Added by: 29.03.2026
  • Add to favorites
Market type
Secondary market
Street
vul. Tarasivs'ka 16/1
Purpose
Office Premise
Floor
1 Floor
Number of storeys
5 storey house
Total area
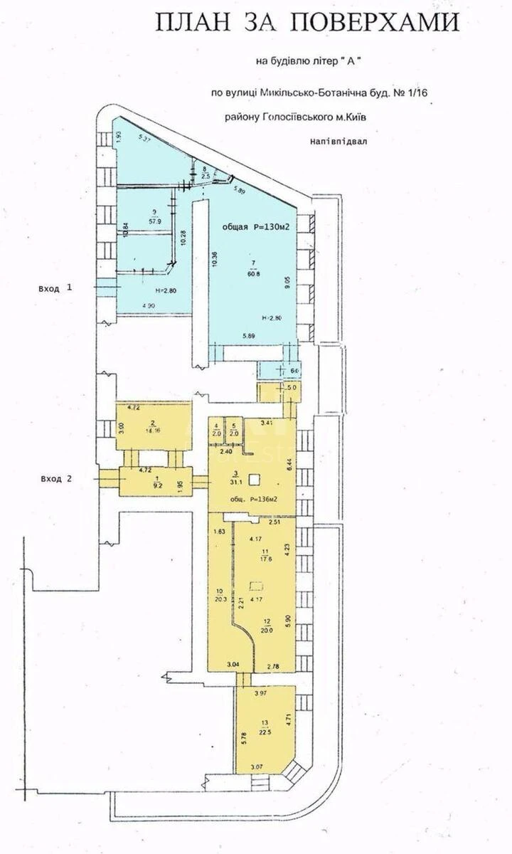
135 м2
General state
With repair
Price:
15 361 293 UAH
350 000 USD
Description of the object

Office space. Hall with reception. Mirror hall, toilets, shower, storage rooms. Basement (non-residential premises). All communications, two separate entrances, quiet cosy courtyard. Good transport links. Low utility bills. Warm premises, no heating costs.

Similar offers