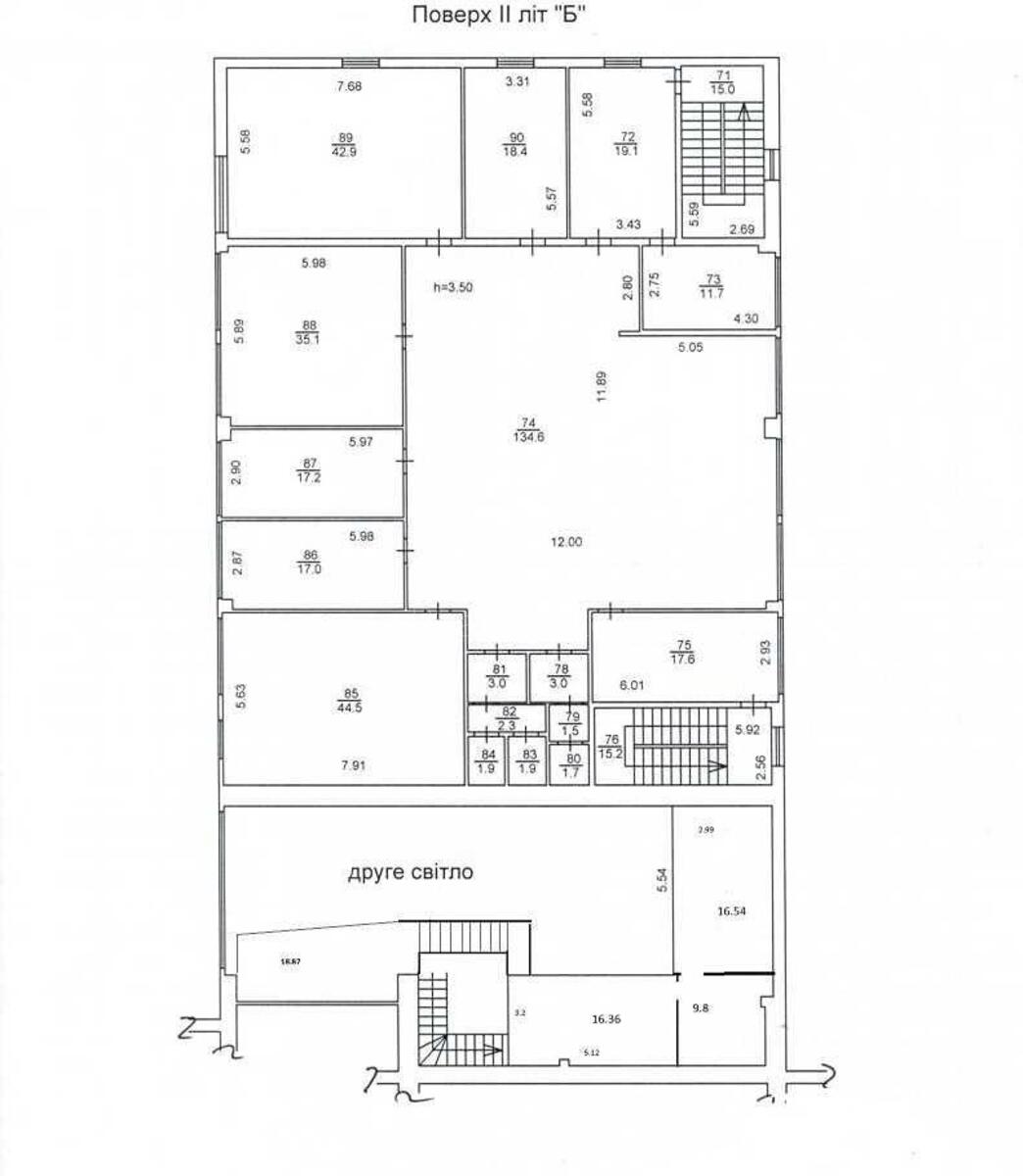
Office vul. Sverstjuka Jevgena 11Б, 375m2

  • Dniprovskyi District vul. Sverstjuka Jevgena 11Б
  • Code: RC-217-683
  • Added by: 10.11.2025
  • Add to favorites
Market type
Secondary market
Street
vul. Sverstjuka Jevgena 11Б
Purpose
Office Premise
Floor
3 Floor
Number of storeys
3 storey house
Total area
375 м2
General state
With repair
Price:
131 250 UAH
3 122 USD
  • AXIS Real Estate
  • AXIS Real Estate
  • AXIS Real Estate
Description of the object

The premises are for free use. The room is located on the 3rd floor, separate entrance, closed area. Large hall (open space) - 140 m2, spacious office for management, meeting rooms (a total of 6 rooms from 20 to 45 m2), reception, air-conditioned server room, large kitchen 20 m2. There is a separate area with washbasins and three restrooms.

Additional Information