Office vul. Simyi Prakhovykh 58/10, 362m2

  • Holosiivskyi District vul. Simyi Prakhovykh 58/10
  • Code: RC-223-561
  • Added by: 16.04.2026
  • Add to favorites
Market type
Secondary market
Street
vul. Simyi Prakhovykh 58/10
Purpose
Office Premise
Floor
3 Floor
Number of storeys
5 storey house
Total area
362 м2
General state
With repair
Price:
356 488 UAH
8 197 USD
Description of the object

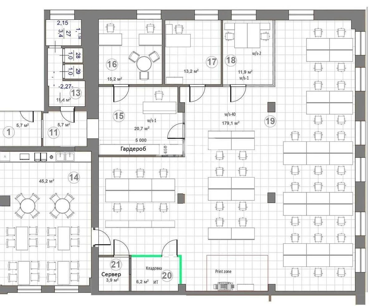
Office space. Layout: spacious open-plan area, 3 separate offices, reception area, storage room, server room, kitchen, WC. The business park features a three-storey covered car park with 450 spaces, four catering outlets, a courtyard with a relaxation area, two terraces, a beauty salon, an art studio, a conference hall, as well as parking with charging points for scooters and bicycles. Building services: the building is designed to operate continuously and without interruption in the event of a mains power cut, with autonomous heating, a chiller-fan coil air conditioning system, and ventilation with air pre-treatment — everything needed for the team to work smoothly.

Similar offers