Office vul. Nyzhnij Val 3/7, 60m2

  • Podilskyi District vul. Nyzhnij Val 3/7
  • Code: RC-219-403
  • Added by: 25.02.2026
  • Add to favorites
Market type
Secondary market
Street
vul. Nyzhnij Val 3/7
Purpose
Office Premise
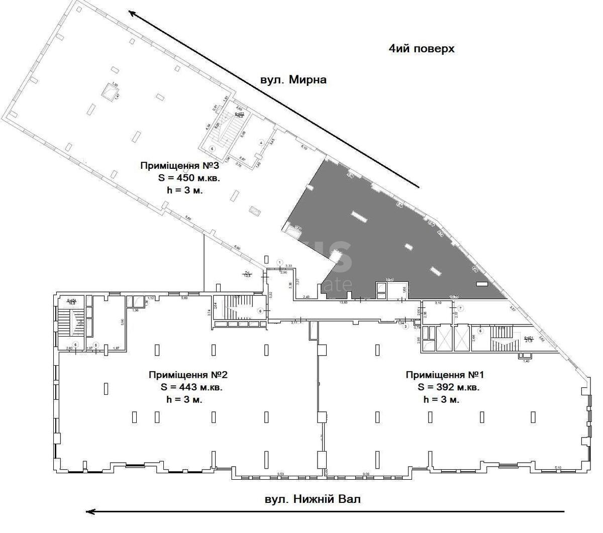
Floor
4 Floor
Number of storeys
8 storey house
Total area
60 м2
General state
Without repair
Price:
38 978 UAH
900 USD
Description of the object

Office space. Total area 450 sq.m. Ceiling height 3m. Premises for office layout, minimum area from 60 sq.m., windows facing the streets: Myrna, Olehivska, Hlybochytska, as well as to the courtyard of the SEC. Shared bathroom for the office block. Electric power for the entire premises is up to 45 kW. Ceiling height is 3 meters. Open-type view rooms, windows overlooking Nizhniy-Verkhniy Val Boulevard and the beginning of Vozdvyzhenka, possibility of placing a separate bathroom, electric power up to 45 kW. The cost of 1 sq.m. is from $15 + VAT + $5. Substantial vacation for repairs, or delivery with repairs for the tenant.

Similar offers