Rent

All photos (9)
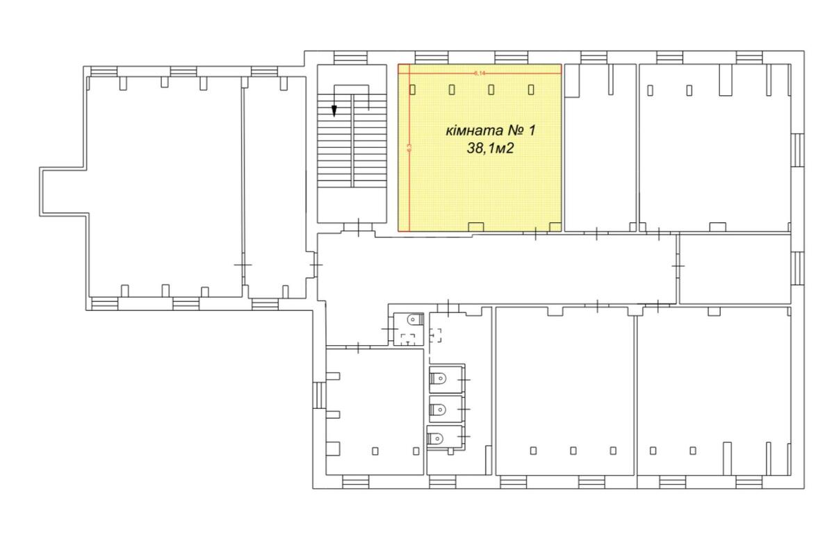
Office vul. Mezhygirs'ka 87А, 38m2
- Add to favorites
-
Share link
Market type
Secondary market
Street
vul. Mezhygirs'ka 87А
Purpose
Office Premise
Floor
4 Floor
Number of storeys
5 storey house
Total area
38 м2
General state
With repair
Price:
20 300 UAH
486 USD
Description of the object
Office space. The price includes: rent, heating, maintenance, electricity, internet, water supply. Fourth floor. I pay a commission to realtors. "Mezhyhirsky" - Podil, Taras Shevchenko metro station, three minutes on foot.
Additional Information