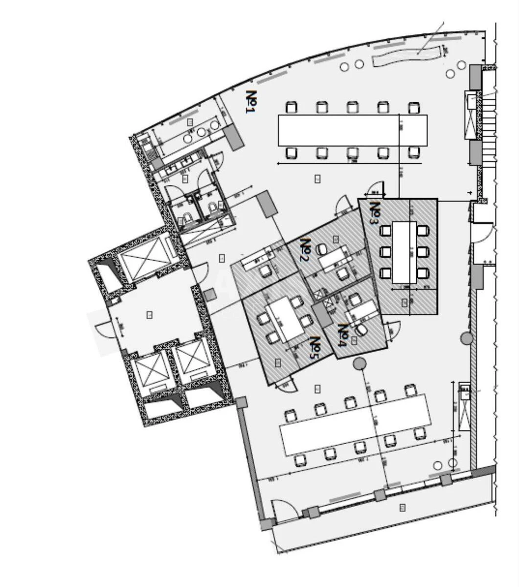
Office vul. Jevgena Konoval'cja 36, 308m2

  • Pecherskyi District vul. Jevgena Konoval'cja 36
  • Code: RC-221-645
  • Added by: 24.02.2026
  • Add to favorites
Market type
Secondary market
Street
vul. Jevgena Konoval'cja 36
Purpose
Office Premise
Floor
5 Floor
Number of storeys
8 storey house
Total area
308 м2
General state
With repair
Price:
293 260 UAH
6 776 USD
Description of the object

Office space. Modern business centre in Pechersk. Combined layout (entrance area, reception, open space, offices, meeting rooms, coffee point or mini-kitchen, terrace or balcony), fully equipped server cabinets, built-in furniture, designer interior elements and lighting. Stylish modern office, real photos.

Similar offers