Office vul. Ioana Pavla II 6/1, 240m2

  • Pecherskyi District vul. Ioana Pavla II 6/1
  • Code: SC-221-213
  • Added by: 30.03.2026
  • Add to favorites
Market type
Secondary market
Street
vul. Ioana Pavla II 6/1
Purpose
Office Premise
Floor
2 Floor
Number of storeys
13 storey house
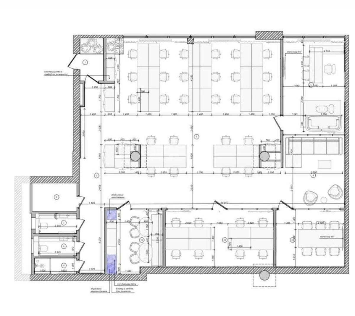
Total area
240 м2
General state
With repair
Price:
52 667 997 UAH
1 200 000 USD
Description of the object

Fountain Boulevard residential complex, office space. 35 workstations. Lounge area. Executive office. Meeting room. Server room and technical room. 2 bathrooms + shower room. Kitchen. Underground parking. Generator installed.

Similar offers