Office vul. Gajdara 58/10, 356m2

  • Holosiivskyi District vul. Gajdara 58/10
  • Code: RC-217-473
  • Added by: 05.11.2025
  • Add to favorites
Market type
Secondary market
Street
vul. Gajdara 58/10
Purpose
Office Premise
Floor
3 Floor
Number of storeys
5 storey house
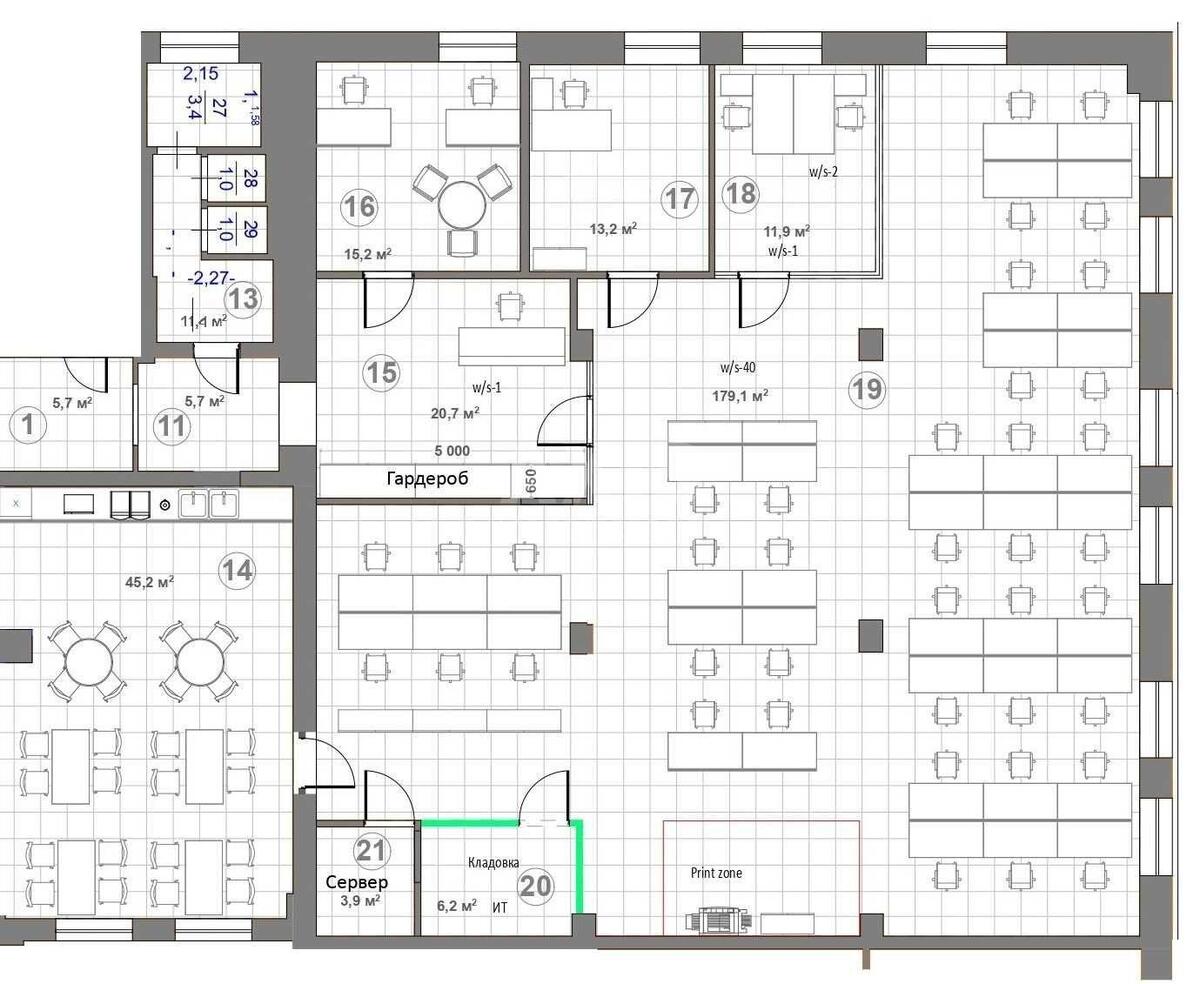
Total area
356 м2
General state
With repair
Price:
281 006 UAH
6 680 USD
  • AXIS Real Estate
  • AXIS Real Estate
  • AXIS Real Estate
Description of the object

Office space. Layout: open space area, separate offices, reception area, kitchen. Renovation: cosmetic, with the possibility of quick tenant move-in. The business park has a three-level covered parking for 450 cars, 4 food outlets, a courtyard with a seating area, 2 terraces, a beauty salon, an art studio, a conference room, and parking with electric chargers for scooters and bicycles.

Additional Information

Similar offers