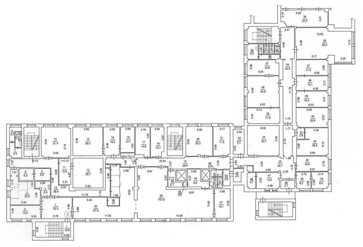
Office vul. Dmytrivs'ka 18/24, 1070m2

  • Shevchenkivskyi District vul. Dmytrivs'ka 18/24
  • Code: SC-223-267
  • Added by: 02.04.2026
  • Add to favorites
Market type
Secondary market
Street
vul. Dmytrivs'ka 18/24
Purpose
Office Premise
Floor
2 Floor
Number of storeys
9 storey house
Total area
1070 м2
General state
With repair
Price:
56 390 708 UAH
1 284 720 USD
Description of the object

Office premises. The premises have recently undergone cosmetic refurbishment; they feature two entrances, a separate exit and a fire exit, three bathrooms with multiple cubicles, an electrical capacity of 90 kW, and a cubicle system; each cubicle is fitted with new air conditioning units; parking is available at the front of the building and in the inner courtyard. Nearby: Ukraine University, the circus, and convenient transport links.

Similar offers