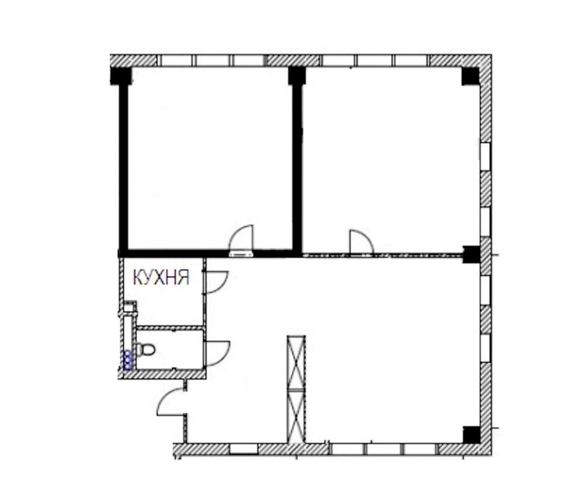
Office vul. Antonovycha 33В, 145m2

  • Holosiivskyi District vul. Antonovycha 33В
  • Code: RC-219-756
  • Added by: 30.12.2025
  • Add to favorites
Market type
Secondary market
Street
vul. Antonovycha 33В
Purpose
Office Premise
Floor
6 Floor
Number of storeys
13 storey house
Total area
145 м2
General state
With repair
Price:
84 455 UAH
2 000 USD
Description of the object

Office space. The room consists of: reception area, 3 separate offices, kitchen, bathroom. Good condition. The floor is laminate, the walls are light. The office is equipped with a fan coil heating system, additionally installed air conditioners in each office, internet, fire alarm, intercom. Rental price: 2000 USD/month, utilities are paid separately.

Similar offers