5k apartment vul. Antonovycha 109

  • Holosiivskyi District vul. Antonovycha 109
  • Code: SF-3-253-579
  • Added by: 31.01.2026
  • Add to favorites
Market type
Primary market
Street
vul. Antonovycha 109
Number of rooms
5
Floor
23 Floor
Number of storeys
24 storey house
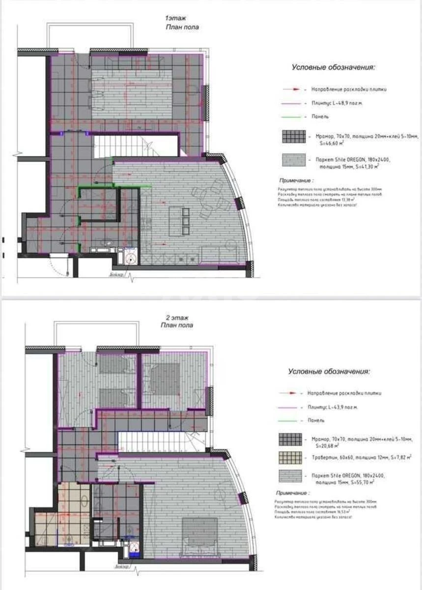
Total area
184 м2
General state
With repair
Price:
23 766 072 UAH
555 000 USD
Description of the object

Volodymyrskyi residential complex, 5-room apartment. Fully plastered to avoid cracks and drafts, after plastering, the apartment was left for a year to detect possible shrinkage on the walls. Three bathrooms are completely lined with natural stone, all fittings are premium German Hansgrohe, ceramics Villeroi Boch. All furniture is made to order, all Miele appliances. Miele washing machine and dryer. Three-stage water purification system Ecosoft. Premium German Jung electrical fittings. In general, this is one of the best VIP apartments in Kyiv, at the price of an ordinary apartment in the center.

Similar offers