Sell
 
              
                 
                All photos (14)
              
              
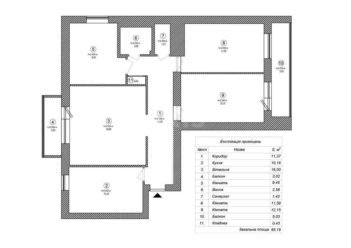
          4k apartment vul. Svjatoshyns'ka 6
- Add to favorites
- 
              Share link
Market type
                Secondary market
              Street
                
                  vul. Svjatoshyns'ka 6
              Number of rooms
                4
              Floor
                9 Floor
              Number of storeys
                9 storey house
                
              Total area
                81 м2
              General state
                With repair
              Price:
              3 780 546 UAH
              90 000 USD
            Description of the object
          4 bedroom apartment. The apartment is bright and warm, located on the 9th floor, (above the technical floor), has four separate rooms, a kitchen, a separate bathroom, a loggia, a balcony, a storage room, and a storage room in the basement. The house is brick, ceiling height is 2.55 m. The entrance is equipped with a ramp, glazed with plastic windows. There is a playground and a sports ground.
Additional Information
           
                   
                   
                   
                   
                   
                   
                   
                   
                   
                   
                   
                   
                  