3k apartment vul. Solom'jans'ka 19

  • Solomianskyi District vul. Solom'jans'ka 19
  • Code: SF-3-296-636
  • Added by: 26.03.2026
  • Add to favorites
Market type
Secondary market
Street
vul. Solom'jans'ka 19
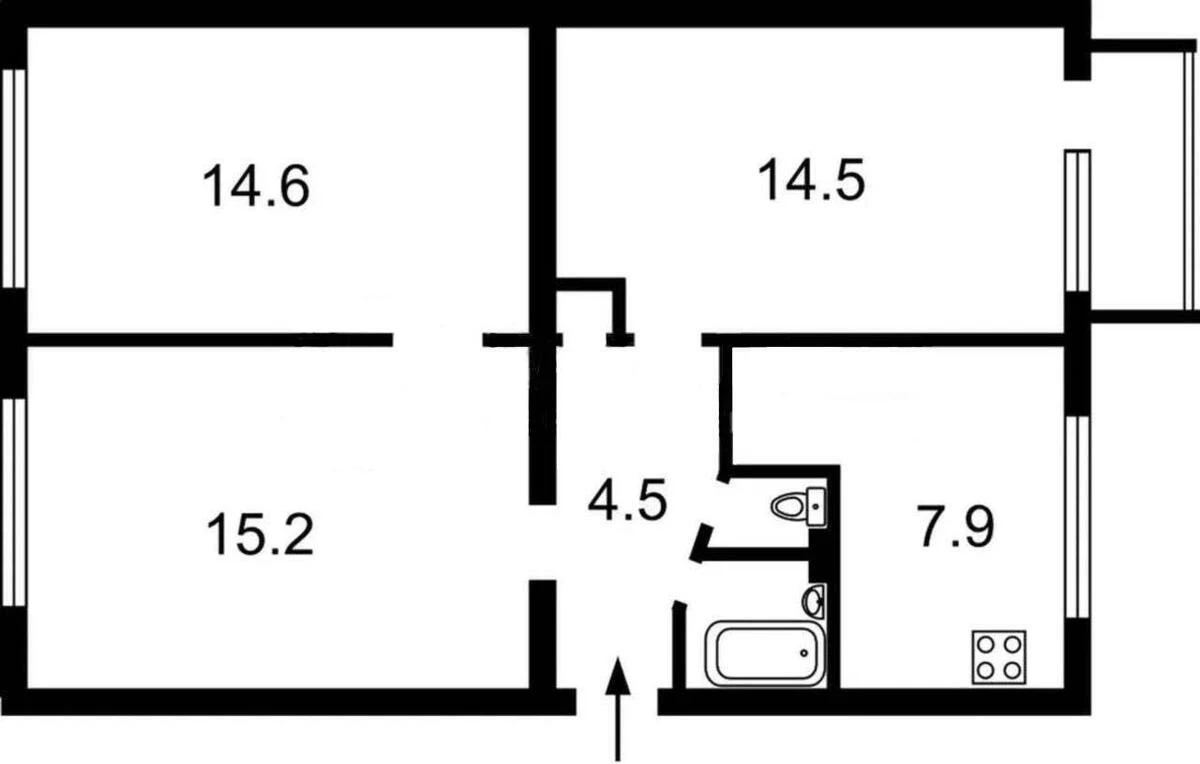
Number of rooms
3
Floor
4 Floor
Number of storeys
5 storey house
Total area
62 м2
General state
With repair
Price:
2 635 655 UAH
59 900 USD
Description of the object

A three-bedroom flat. A warm and bright three-bedroom flat with a practical layout, in need of renovation. All key preparatory work has been completed: energy-efficient windows have been fitted, bimetallic radiators have been replaced (disconnected for plastering work), old floor and wall coverings have been removed and partial plumbing work carried out, walls have been prepared for finishing, and a new front door has been installed. The bathroom is subject to re-planning at the owner’s discretion, allowing the space to be optimised for a modern design. The building is connected to the main power grid, so power cuts are virtually non-existent, and heating is centralised. The neighbourhood’s surroundings and infrastructure create a comfortable living environment: a cosy, green area with clean air, close to areas for walking, sport and leisure. There is a trolleybus stop right outside the building; it is a 12–15-minute walk to the ‘Olimpiiska’ metro station, and around 15 minutes by car to the centre of Kyiv. Within walking distance are a nursery, schools, secondary schools, universities, supermarkets, shops, cafés, pharmacies and medical centres. There are also branches of Nova Poshta, Ukrposhta, Meest and Rozetka nearby.

Similar offers