3k apartment vul. Kudri Ivana 1Б

  • Pecherskyi District vul. Kudri Ivana 1Б
  • Code: SF-3-262-787
  • Added by: 13.02.2026
  • Add to favorites
Market type
Secondary market
Street
vul. Kudri Ivana 1Б
Number of rooms
3
Floor
22 Floor
Number of storeys
24 storey house
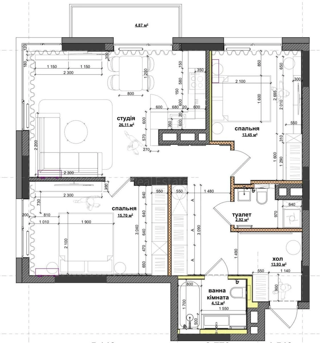
Total area
80 м2
General state
With repair
Price:
18 051 416 UAH
419 000 USD
Description of the object

French Quarter 2, 3-room apartment. Bright, spacious apartment with a separate layout: kitchen-living room and two separate rooms, two bathrooms. All windows offer panoramic and truly impressive views. The space is very sunny: the bedroom faces east, the kitchen-living room has an orientation to the east and south, the second room and balcony - to the south. Author's renovation of the super-luxury class (May 2025) in a modern style, the apartment is completely new, no one has lived, all appliances are under warranty. Equipment includes dishwasher, tumble dryer, refrigerator, hob, oven, microwave, stove and washing machine. Centralized heating, furniture and appliances are installed and ready for use. A residential complex with a well-thought-out concept of "yard without cars" and the principle of "city within a city". The building has a shopping center and daily infrastructure facilities, a concierge service, and the territory is fenced and controlled. There are underground and ground parking lots, and a security room on the territory. The building is modern, comfortable for living and meets a high level of quality. The territory of the complex is well-groomed and landscaped, with pedestrian alleys, flower beds, lawns and recreation areas with gazebos. There is a playground in the format of a playground complex, as well as sports areas: a mini-football field, a mini-basketball field and a workout area. The space is safe, cozy and well suited for both active recreation and quiet leisure.

Similar offers