Sell
 
              
                 
                All photos (14)
              
              
          3k apartment vul. Elektrotehnichna 43
- Add to favorites
- 
              Share link
Market type
                Primary market
              Street
                
                  vul. Elektrotehnichna 43
              Number of rooms
                3
              Floor
                5 Floor
              Number of storeys
                25 storey house
                
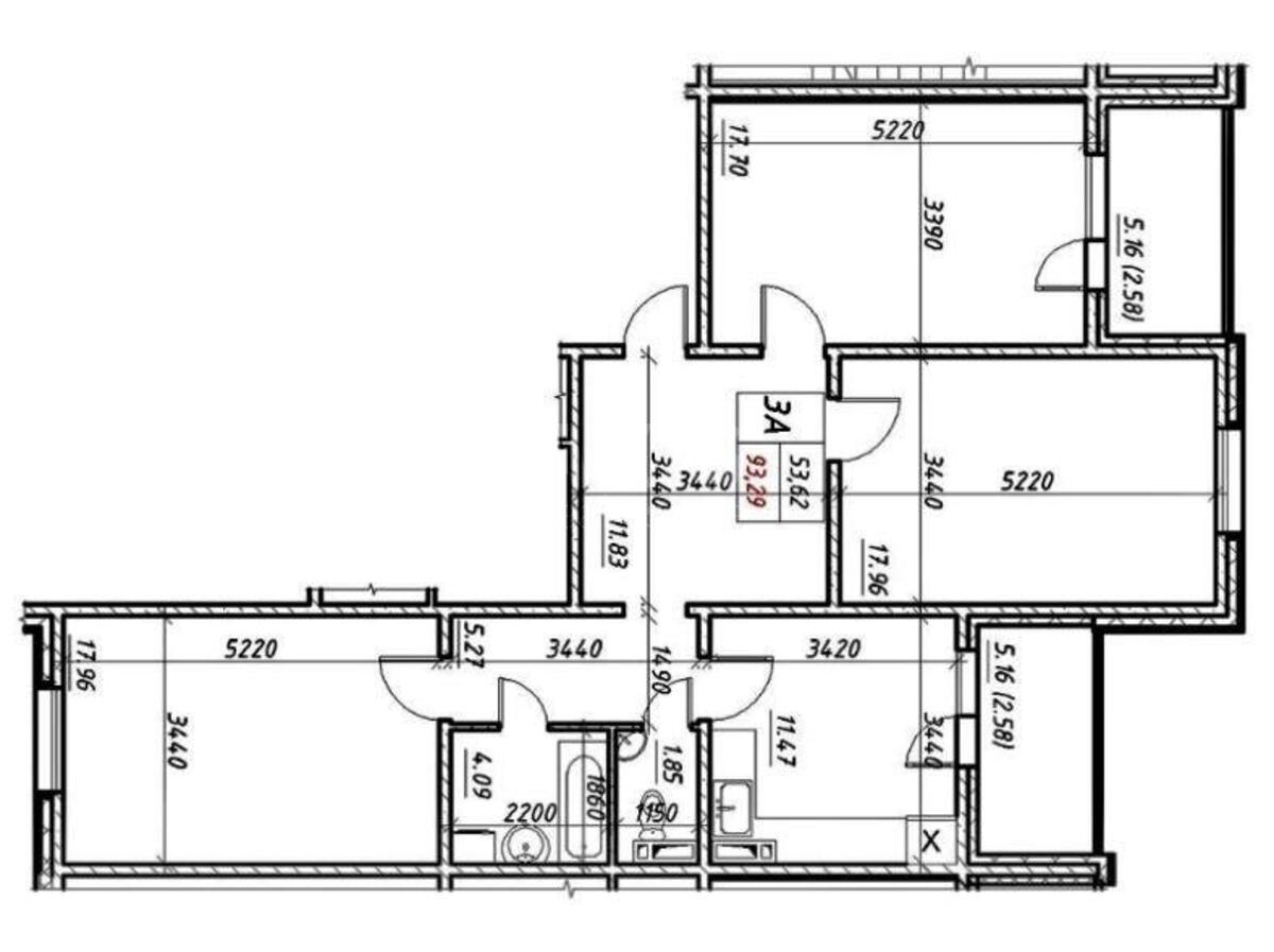
              Total area
                93 м2
              General state
                With repair
              Price:
              3 356 285 UAH
              79 900 USD
            Description of the object
          Desnianskyi residential complex, 3-room apartment. Three-room apartment of 93.29m3. The living area is 54 m2. Kitchen is 14m2. The apartment is fully finished: metal entrance door. M / plastic new soundproof windows. Radiators, sockets, switches, installed heating system, wiring, wallpaper, linoleum, plumbing.
Additional Information
           
                   
                   
                   
                   
                   
                   
                   
                   
                   
                   
                   
                   
                   
                           
                           
                          