
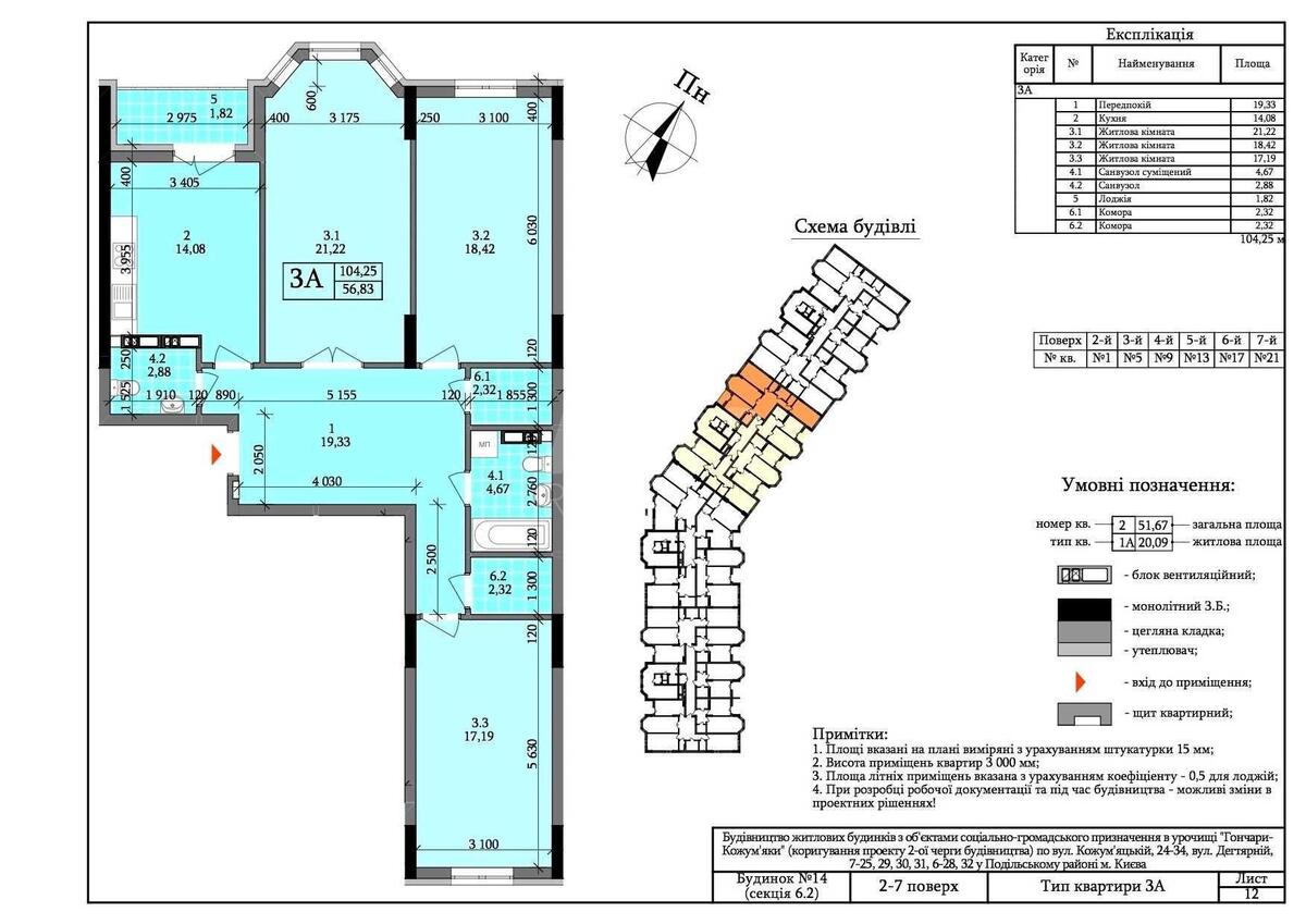
3k apartment vul. Degtjarna 20А
- Add to favorites
-
Share link
3-room apartment. With a separate layout after the builders, it is a convenient option for arranging the space according to your own design. The unfinished condition makes it possible to realize an individual design. Heating is provided by our own boiler room, which guarantees a stable temperature in any season. The house was built using monolithic frame technology with ceramic bricks. The walls are insulated with mineral wool and foam, and the facades are finished with mineral plaster. The complex is implemented in a modern "Smart Home" concept, which provides energy efficiency and technological solutions for the convenience of residents. There is an underground parking for cars, and separate ground parking spaces for guests. The territory of the complex is well-groomed, with modern engineering and well-thought-out landscaping.