3k apartment vul. Chornovola V'jacheslava 25

  • vul. Chornovola V'jacheslava 25
  • Code: RF-3-298-906
  • Added by: 01.04.2026
  • Add to favorites
Market type
Secondary market
Street
vul. Chornovola V'jacheslava 25
Number of rooms
3
Floor
8 Floor
Number of storeys
22 storey house
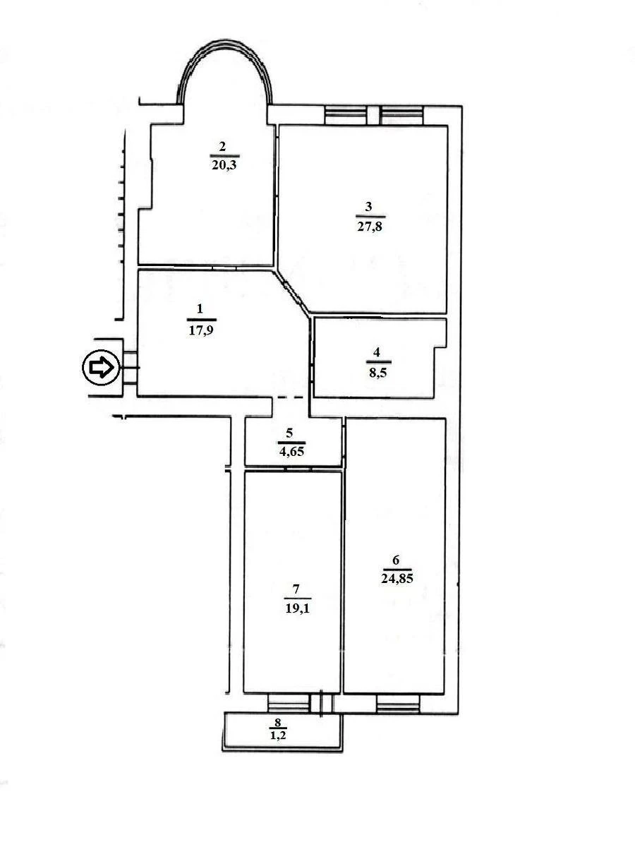
Total area
125 м2
General state
With repair
Price:
35 000 UAH
798 USD
Description of the object

A three-bedroom flat. Upon entering, there is a spacious hall leading to the kitchen; living room; bedroom; study and bathroom. The study has a spacious balcony and a safe. The bedroom overlooks the courtyard. The building has a generator for heating. The renovation is in the ‘Versailles’ style. Nearby are parks, squares, markets, all major supermarket chains, schools and nurseries. Excellent transport links.

Similar offers