3k apartment vul. Avtozavods'ka 71

  • Obolonskyi District vul. Avtozavods'ka 71
  • Code: SF-3-250-488
  • Added by: 30.01.2026
  • Add to favorites
Market type
Secondary market
Street
vul. Avtozavods'ka 71
Number of rooms
3
Floor
11 Floor
Number of storeys
16 storey house
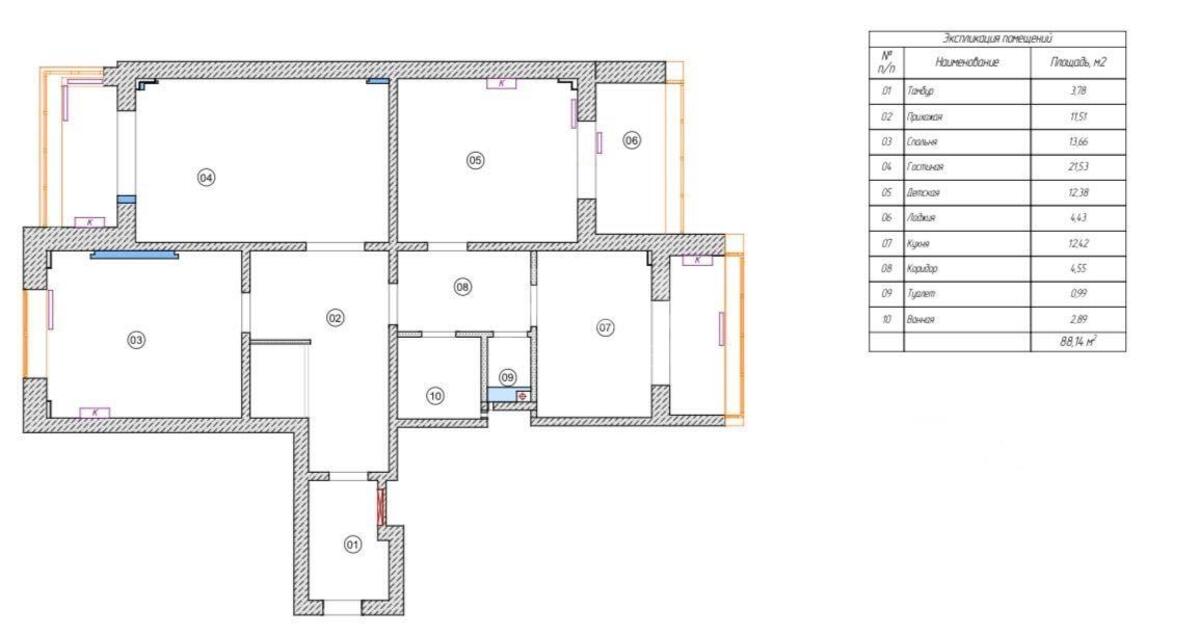
Total area
88 м2
General state
With repair
Price:
5 145 683 UAH
120 000 USD
Description of the object

3-room apartment. Spacious apartment with a separate layout and author's designer renovation. All details are thought out for maximum comfort and style. The kitchen has a modern Italian kitchen with a stone countertop and built-in appliances: Bosch dishwasher, hob, oven, Bosch hood and chopper. The living room is equipped with a bar with a niche for a wine cabinet. The apartment has four Dyson air conditioners, a separate bathroom with a boiler and Italian plumbing, floor heating, and high-quality Spanish tiles. Built-in wardrobes in the rooms and a spacious 4 m² dressing room with a large mirror provide ample storage space. Additional comfort is provided by high-speed Internet, Wi-Fi, alarm system, bathroom and glazed balcony/ loggia. The building is equipped with passenger and freight elevators, a fire alarm system and a reliable security system. The territory is well-groomed, the entrances are tidy. There is furniture in the kitchen, separate technical rooms and good sound insulation. The area has a well-developed infrastructure: there are public transport stops, shops, supermarkets, schools, kindergartens and other important city facilities nearby. The convenient location provides quick access to major transport arteries and necessary services, which makes the apartment comfortable for both living and renting.

Similar offers