3k apartment proi'zd Vijs'kovyj 8

  • Pecherskyi District proi'zd Vijs'kovyj 8
  • Code: SF-3-276-052
  • Added by: 10.02.2026
  • Add to favorites
Market type
Primary market
Street
proi'zd Vijs'kovyj 8
Number of rooms
3
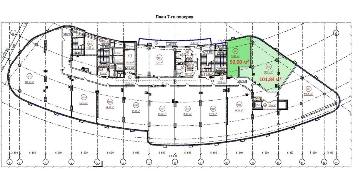
Floor
7 Floor
Number of storeys
25 storey house
Total area
101 м2
General state
Without repair
Price:
6 917 148 UAH
160 650 USD
Description of the object

Delrey residential complex, 3-room apartment. A spacious apartment with an area of 101.84 m² in a modern business-class residential complex. The layout allows for a large kitchen-living room and several separate bedrooms or a study — ideal for a family or a combination of living and working from home. Thanks to the large windows, the apartment is bright and feels even more spacious. Successful zoning makes it possible to create a comfortable, functional interior to suit your needs. A modern business-class complex with an emphasis on comfort and privacy for residents.

Similar offers