3k apartment pr-t Yevropeyskoho Soyuzu 1

  • Podilskyi District pr-t Yevropeyskoho Soyuzu 1
  • Code: SF-3-249-720
  • Added by: 25.02.2026
  • Add to favorites
Market type
Primary market
Street
pr-t Yevropeyskoho Soyuzu 1
Number of rooms
3
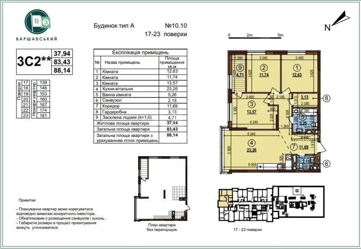
Floor
18 Floor
Number of storeys
25 storey house
Total area
88 м2
General state
Without repair
Price:
4 677 456 UAH
108 000 USD
Description of the object

RC Varshavsky 3, 3-room apartment. There is a laser screed on the floor, channels for electrical wiring, fire alarm, meters for cold and hot water, electricity, metal entrance doors, fire doors, Rehau plastic windows with double-glazed windows. The house has a backup power supply, the developer has installed a generator.

Similar offers