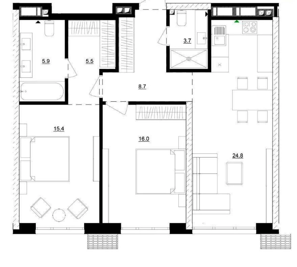
2k apartment vul. Mykil's'ko-Slobids'ka 13/17

  • Dniprovskyi District vul. Mykil's'ko-Slobids'ka 13/17
  • Code: SF-3-258-388
  • Added by: 30.01.2026
  • Add to favorites
Market type
Primary market
Street
vul. Mykil's'ko-Slobids'ka 13/17
Number of rooms
2
Floor
20 Floor
Number of storeys
25 storey house
Total area
80 м2
General state
Without repair
Price:
5 510 169 UAH
128 500 USD
Description of the object

Rusanivska Havan residential complex, 2-room apartment. Modern layout and large panoramic windows - space, light, beauty. Own boiler room for each house - stable heat and hot water. High quality construction, ceramic block walls. The equipped embankment on the banks of the Dnipro River is an ideal place for walks, morning jogging and relaxing on sun loungers.

Similar offers