Sell
 
              
                 
                All photos (12)
              
              
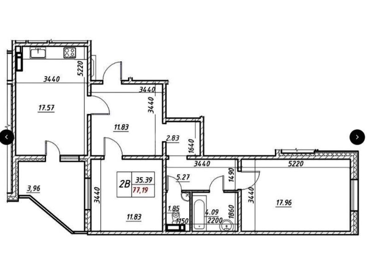
          2k apartment vul. Elektrotehnichna 43
- Add to favorites
- 
              Share link
Market type
                Primary market
              Street
                
                  vul. Elektrotehnichna 43
              Number of rooms
                2
              Floor
                5 Floor
              Number of storeys
                25 storey house
                
              Total area
                77 м2
              General state
                With repair
              Price:
              2 751 397 UAH
              65 500 USD
            Description of the object
          Desnianskyi residential complex, 2-room apartment. The apartment is rented with full construction finishing: metal entrance doors, Rehau energy-saving plastic windows, wallpaper, interior doors with fittings, linoleum, plumbing + faucets, copper wiring, sockets, switches, heating radiators with regulators, cold and hot water meters, electricity.
Additional Information
           
                   
                   
                   
                   
                   
                   
                   
                   
                   
                   
                   
                           
                           
                          