Sell
 
              
                 
                All photos (14)
              
              
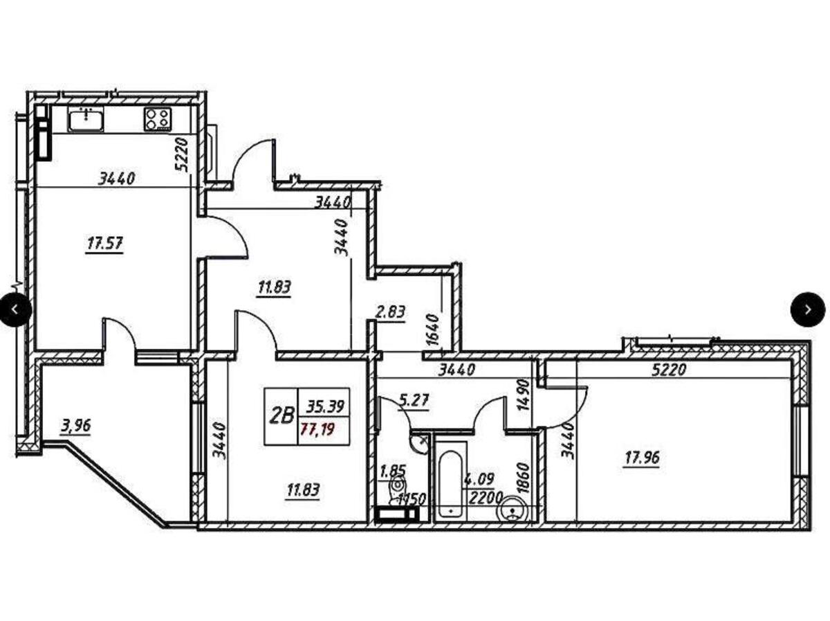
          2k apartment vul. Elektrotehnichna 43
- Add to favorites
- 
              Share link
Market type
                Primary market
              Street
                
                  vul. Elektrotehnichna 43
              Number of rooms
                2
              Floor
                8 Floor
              Number of storeys
                25 storey house
                
              Total area
                77 м2
              General state
                With repair
              Price:
              2 801 805 UAH
              66 700 USD
            Description of the object
          Desnyansky residential complex, 2-bedroom apartment. House 1. Handed over. The total area is 77.19. Kitchen 18. Living room 35. There is everything you need. Developed infrastructure. Good location. Excellent transport interchange.
Additional Information
           
                   
                   
                   
                   
                   
                   
                   
                   
                   
                   
                   
                   
                   
                           
                           
                          