2k apartment pr-t Yevropeyskoho Soyuzu 1

  • Podilskyi District pr-t Yevropeyskoho Soyuzu 1
  • Code: SF-3-249-746
  • Added by: 25.02.2026
  • Add to favorites
Market type
Primary market
Street
pr-t Yevropeyskoho Soyuzu 1
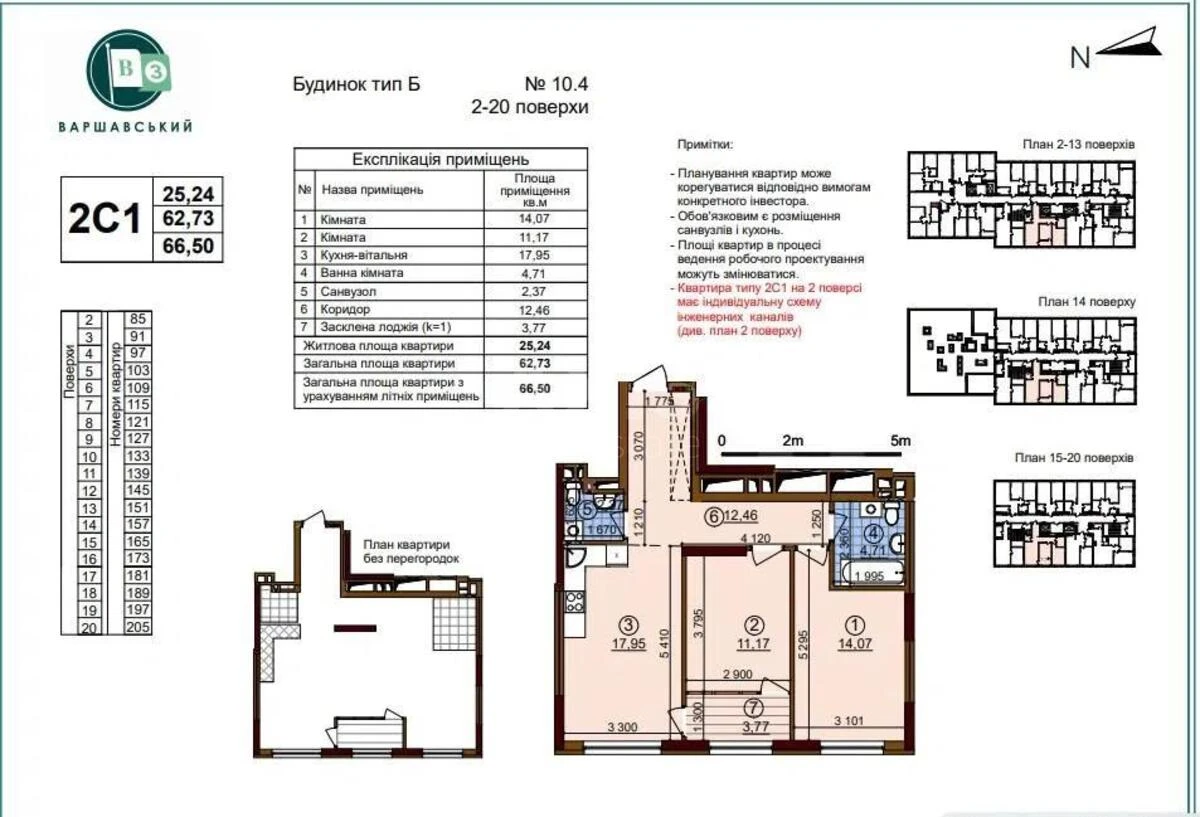
Number of rooms
2
Floor
20 Floor
Number of storeys
25 storey house
Total area
66 м2
General state
Without repair
Price:
3 594 711 UAH
83 000 USD
Description of the object

Residential complex Varshavsky 3, 2-bedroom apartment. Condition after the builders Laser screed on the floor, electricity, fire alarm, meters for cold, hot water, electricity, metal entrance, fire doors, Rehau plastic windows with double-glazed windows. The house has an autonomous power supply, the developer has installed a generator.

Similar offers