2k apartment pr-t Lobanovs'kogo 4Г

  • Solomianskyi District pr-t Lobanovs'kogo 4Г
  • Code: SF-3-293-410
  • Added by: 18.03.2026
  • Add to favorites
Market type
Secondary market
Street
pr-t Lobanovs'kogo 4Г
Number of rooms
2
Floor
27 Floor
Number of storeys
27 storey house
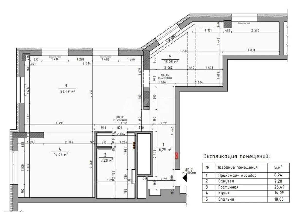
Total area
72 м2
General state
With repair
Price:
5 509 572 UAH
125 000 USD
Description of the object

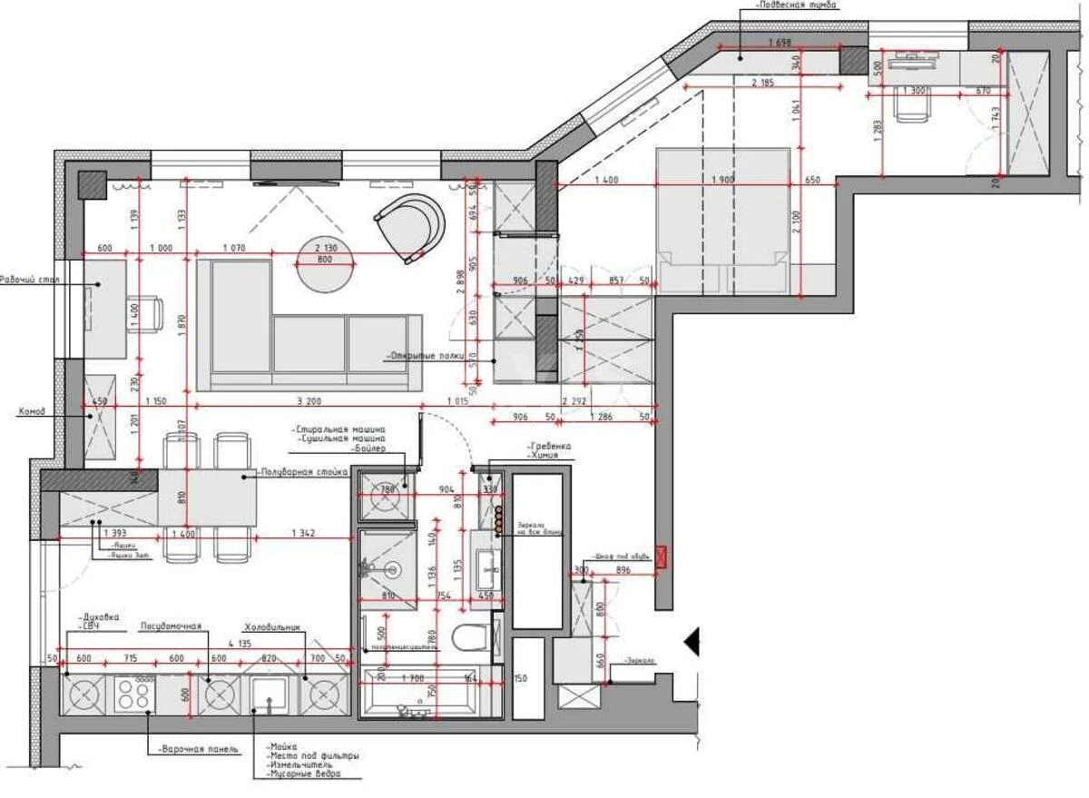
Oleksandrivskyi residential complex, 2-bedroom flat. It features a practical layout with a separate bedroom and a spacious living room open-plan with the kitchen. The bedroom features a large bed, a desk and two wardrobes. The living room has a comfortable sofa, a dining table and a well-appointed hallway with a wardrobe for coats and shoes. The 14 m² kitchen is fitted with built-in EGGER chipboard units, Whirlpool appliances (fridge, oven, microwave, dishwasher) and a natural stone worktop. It features a Samsung washer-dryer and a 100-litre Gorenje boiler. The bathroom features a large Villeroy & Boch cast iron bath, underfloor heating, tiling and a rain shower. There is also a shower cubicle. Central heating is provided, and meters are installed for water, heating and electricity, as well as an uninterruptible power supply (UPS) with the option to connect solar panels. Amenities include two Cooper&Hunter inverter air conditioners with Wi-Fi, high-speed internet, LED lighting throughout the flat, underfloor heating and panoramic windows. There is a balcony and a terrace overlooking the park and lakes, with no neighbouring windows opposite. Bedrooms — 18 m². Designer loft-style renovation, carried out to a high standard using quality materials; the walls and ceiling are insulated; the entrance features a reinforced door with secure locks. The flat is completely quiet, sharing only one wall with neighbours (the kitchen). The building is equipped with three lifts (two passenger and one goods lift), and beneath it is a three-level underground car park with 24-hour security, access from the lobby and the option to use it as a shelter. There is also above-ground guest parking. The building has a concierge and a pleasant entrance area. The residential complex is built on the ‘city within a city’ concept, featuring well-planned infrastructure and a high level of security. The site is gated and fenced, with an access control system, 24-hour security and CCTV, and concierges on duty in the entrances. Access is restricted to residents and their guests. The residential complex features leisure areas, a standard-type children’s playground, and sports facilities, including a swimming pool and a sports complex.

Similar offers