1k apartment vul. Viktora Nekrasova 2

  • Podilskyi District vul. Viktora Nekrasova 2
  • Code: SF-3-249-687
  • Added by: 25.02.2026
  • Add to favorites
Market type
Primary market
Street
vul. Viktora Nekrasova 2
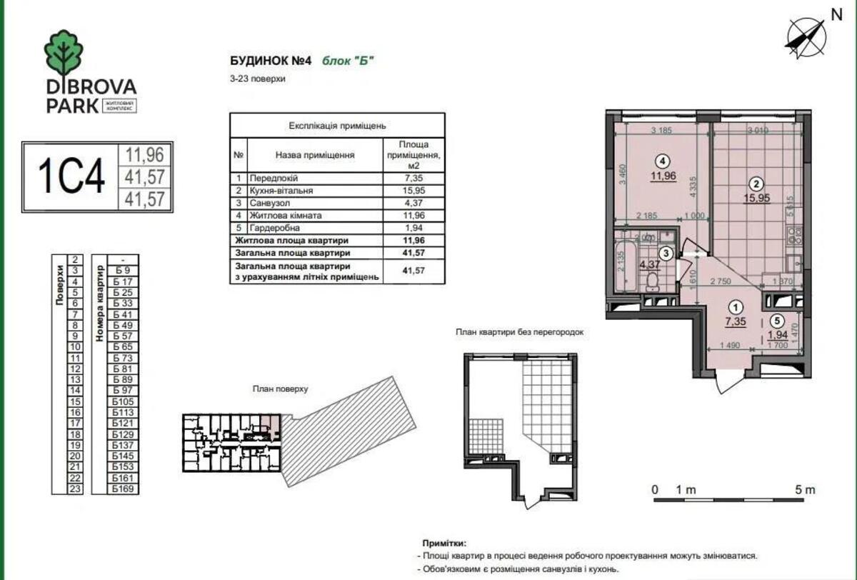
Number of rooms
1
Floor
4 Floor
Number of storeys
26 storey house
Total area
43 м2
General state
Without repair
Price:
2 858 445 UAH
66 000 USD
Description of the object

RC Dibrova Park, 1 bedroom apartment. Condition after builders Laser screed on the floor, fire alarm system, meters for cold water, electricity, fire doors, Rehau metal-plastic windows with double-glazed windows. Large distances between the buildings of the complex are a rarity these days, and this is one of the main advantages of this complex, where you breathe in the air of freedom and do not feel like you are in a stone jungle. The Mostytska metro station will be located near House 2.

Similar offers