
1k apartment vul. Rusovoi' Sofii' 7
- Add to favorites
-
Share link
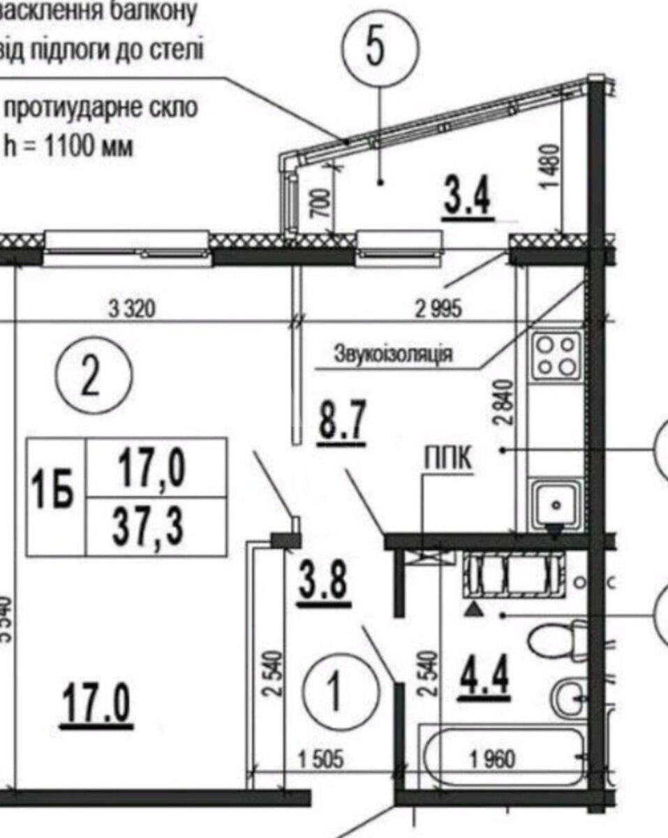
Patriotika residential complex, 1 bedroom apartment. Bright, warm, non-angular apartment with renovation on the sunny side, equipped with an Ajax burglar alarm system (paid by the owner). Equipped with everything you need: comfortable furniture, appliances, including a hob, oven, boiler, washing machine, microwave, plasma TV. There are individual heating meters on each radiator, which allows you to save a lot of money. Spacious balcony with panoramic windows. Wi-Fi, high-speed internet, cable, digital and satellite TV are also available. The apartment is rented for one person - a man or woman without bad habits, children and animals. The building has three elevators, including a freight elevator. There is video surveillance, a concierge, fire and burglar alarms. Parking spaces, guest and underground parking are provided. Convenient location with well-developed infrastructure - bus and minibus stops are nearby. Within walking distance of NOVUS, Epicenter, METRO, ATB, sports clubs, beauty salons, medical centers, bank branches. Nearby is a cascade of lakes with recreation areas, an equipped beach and a cozy promenade.