1k apartment vul. Avgustyna Voloshyna 32А

  • Solomianskyi District vul. Avgustyna Voloshyna 32А
  • Code: SF-3-310-786
  • Added by: 28.04.2026
  • Add to favorites
Market type
Secondary market
Street
vul. Avgustyna Voloshyna 32А
Number of rooms
1
Floor
2 Floor
Number of storeys
7 storey house
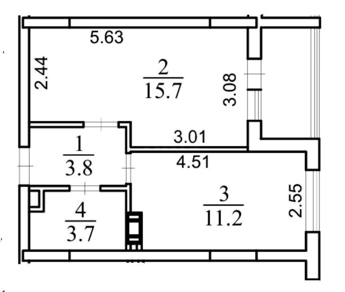
Total area
38 м2
General state
Without repair
Price:
2 428 198 UAH
55 245 USD
Description of the object

Residential complex ‘House on Voloshin Street’, one-bedroom flat. An individual heating system is being installed, powered by an Italian ‘Ferroli’ dual-circuit gas boiler; there is the option to install a solid-fuel boiler or solar panels. The Aerospace Lyceum and the National Aviation University are located nearby. A polyclinic, a school and a prestigious grammar school are 600 metres away. The KPI sports complex is nearby, and on the other side of the railway line lies the famous ‘Karavaevy Dachi’ radio market. Several parks are within walking distance.

Similar offers