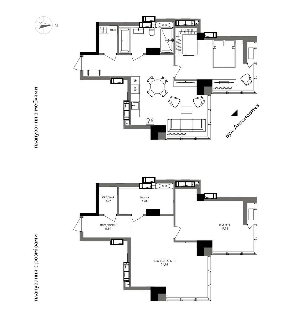
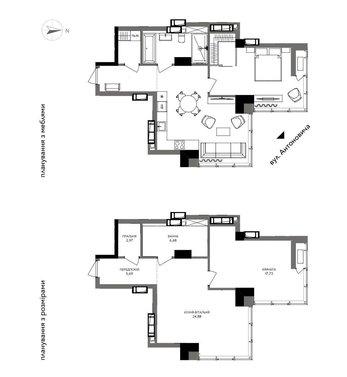
1k apartment vul. Antonovycha 136

  • Holosiivskyi District vul. Antonovycha 136
  • Code: SF-3-265-446
  • Added by: 25.05.2026
  • Add to favorites
Market type
Primary market
Street
vul. Antonovycha 136
Number of rooms
1
Floor
30 Floor
Number of storeys
33 storey house
Total area
63 м2
General state
Without repair
Price:
9 739 323 UAH
220 000 USD
Description of the object

MFC A136 Highlight Tower, 1-room apartment. Layout: large kitchen-living room, separate rooms, bathroom, wardrobe. Panorama of the city center. Individual heating, backup power supply. Developed infrastructure, convenient transport interchange, prestigious area. Parking is also available for sale.

Similar offers