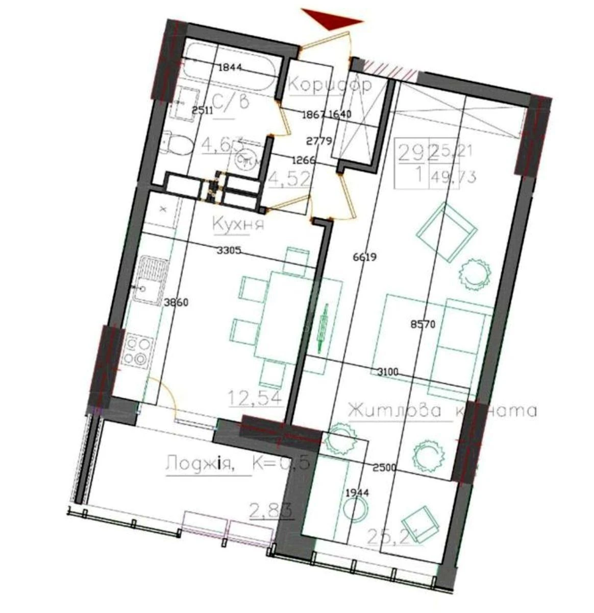
1k apartment bul. Mykoly Mikhnovskoho 13А

  • Pecherskyi District bul. Mykoly Mikhnovskoho 13А
  • Code: SF-3-307-473
  • Added by: 21.04.2026
  • Add to favorites
Market type
Primary market
Street
bul. Mykoly Mikhnovskoho 13А
Number of rooms
1
Floor
20 Floor
Number of storeys
25 storey house
Total area
50 м2
General state
Without repair
Price:
5 452 481 UAH
124 000 USD
Description of the object

One-bedroom flat. Flat with a view, south-facing. Panoramic windows. Practical layout — ideal for conversion. Business-class residential complex: gated courtyard with no cars. Modern architecture. Basement + retail space. Close to Zvirynetska metro station.

Similar offers