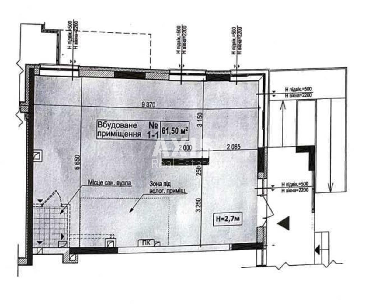
Объект торговли пер. Приборный 10, 62м2

  • Святошинский район пер. Приборный 10
  • Код: RC-201-806
  • Добавлено: 21.11.2024
  • Добавить в избранное
Тип рынка
Вторичный рынок
Улица
пер. Приборный 10
Призначення
Торговое помещение
Этаж
1 Этаж
Этажность
25 этажный дом
Общая площадь
62 м2
Общее состояние
С ремонтом
Цена:
28 213 грн.
669 USD
Описание объекта

ЖК Академквартал, помещения свободного назначения. Дома полностью заселены. Закрытая территория. Помещение фасадное. Вход рядом с входом в парадное. Состояние - после ремонта. Электричество - 16кВт. В ЖК уже есть Коло маркет и кофейня.