Офис ул. Михайловская 7, 465м2

  • Шевченковский район ул. Михайловская 7
  • Код: RC-217-744
  • Добавлено: 11.11.2025
  • Добавить в избранное
Тип рынка
Вторичный рынок
Улица
ул. Михайловская 7
Призначення
Офисное помещение
Этаж
2 Этаж
Этажность
5 этажный дом
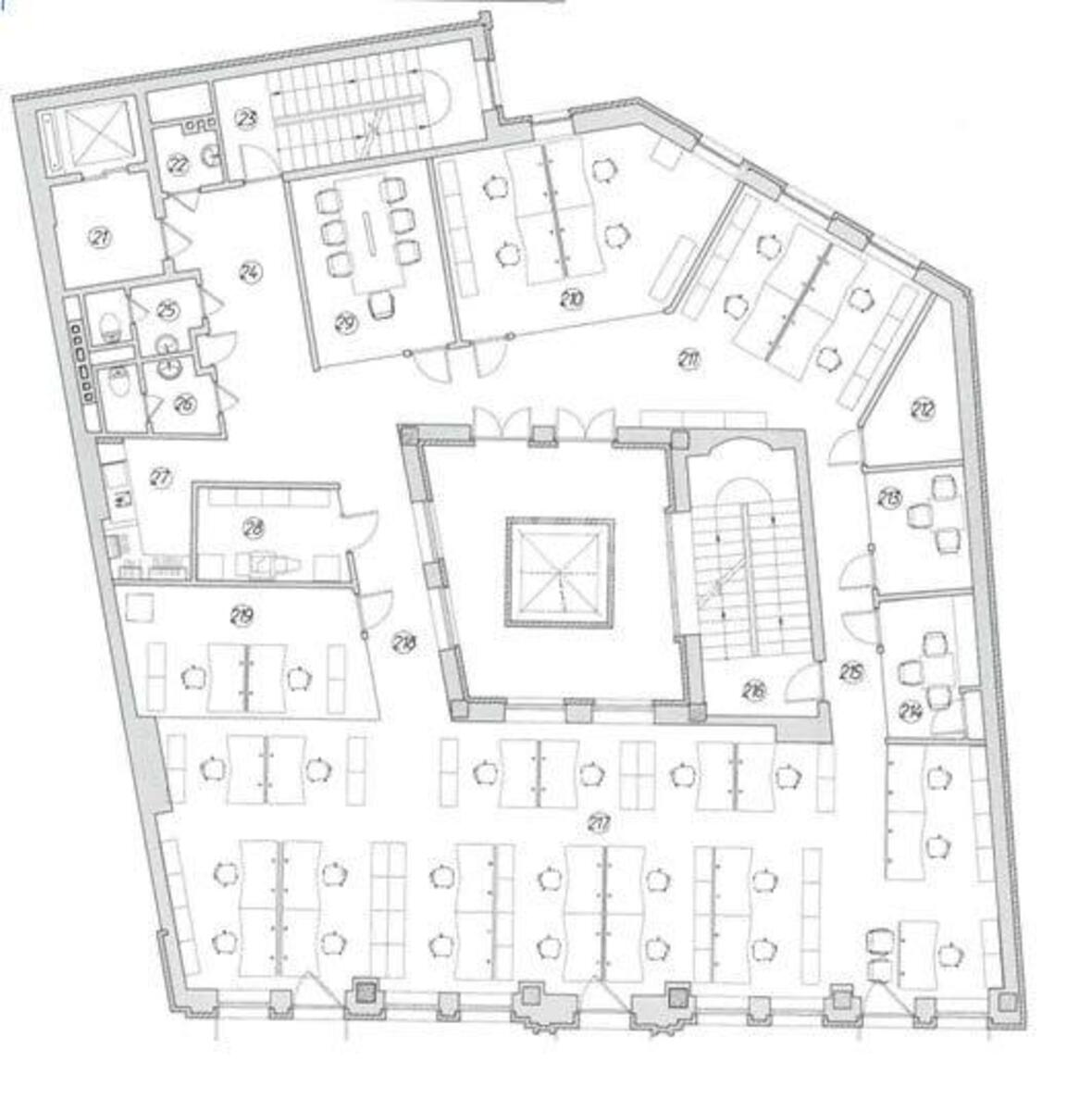
Общая площадь
465 м2
Общее состояние
С ремонтом
Цена:
526 562 грн.
12 555 USD
  • AXIS Real Estate
  • AXIS Real Estate
  • AXIS Real Estate
Описание объекта

Офисное помещение. Мебель: 34 рабочих места, уже Щ мебелью. Формат: open space + кабинеты. Ремонт: современный. Вентиляция, дизель-генератор. 2 санузла, кухня, 3 балкона. Пропускная система, охрана 24/7, видеонаблюдение. Паркинг (лифт в подземку), закрытый двор.

Дополнительная информация

Похожие предложения