Офис спуск Кловский 7, 257м2

  • Печерский район спуск Кловский 7
  • Код: SC-217-753
  • Добавлено: 11.11.2025
  • Добавить в избранное
Тип рынка
Вторичный рынок
Улица
спуск Кловский 7
Призначення
Офисное помещение
Этаж
33 Этаж
Этажность
47 этажный дом
Общая площадь
257 м2
Общее состояние
С ремонтом
Цена:
20 550 831 грн.
490 000 USD
  • AXIS Real Estate
  • AXIS Real Estate
  • AXIS Real Estate
Описание объекта

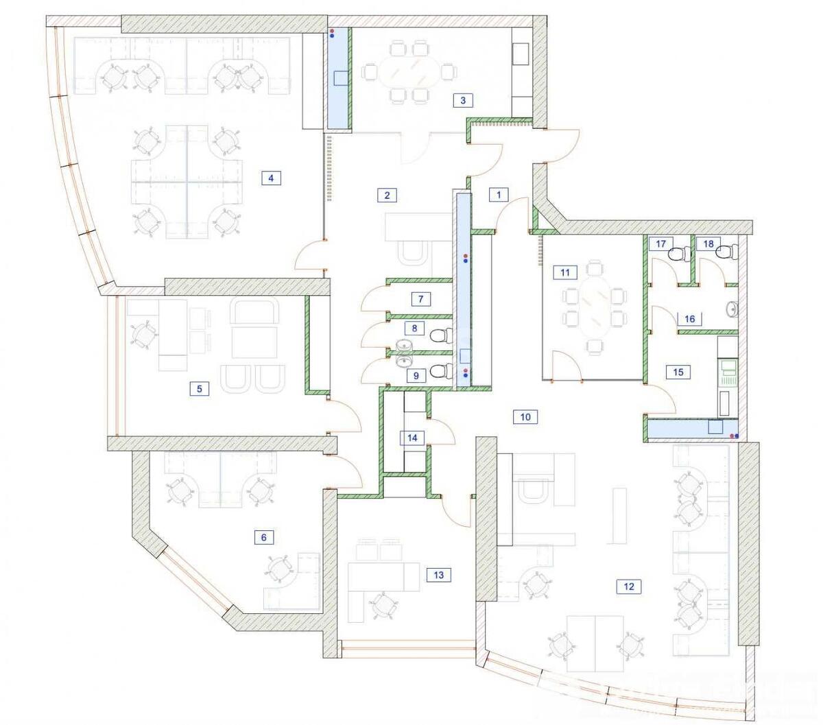
Офисное помещение. Расположен на высоте 115 метров. Огромные панорамные окна с фантастическим видом на Печерск и центр города. Офис включает: зону ресепшн, просторные два рабочих зала OPEN SPACE, три отдельных кабинета, две переговорные комнаты, кухню, четыре санузла и серверную. Количество рабочих мест - 25. Состояние помещения - идеальное, полностью новый ремонт, предлагается впервые.

Дополнительная информация

Похожие предложения