Офис пл. Спортивная Один А, 446м2

  • Печерский район пл. Спортивная Один А
  • Код: RC-209-782
  • Добавлено: 25.02.2026
  • Добавить в избранное
Тип рынка
Вторичный рынок
Улица
пл. Спортивная Один А
Призначення
Офисное помещение
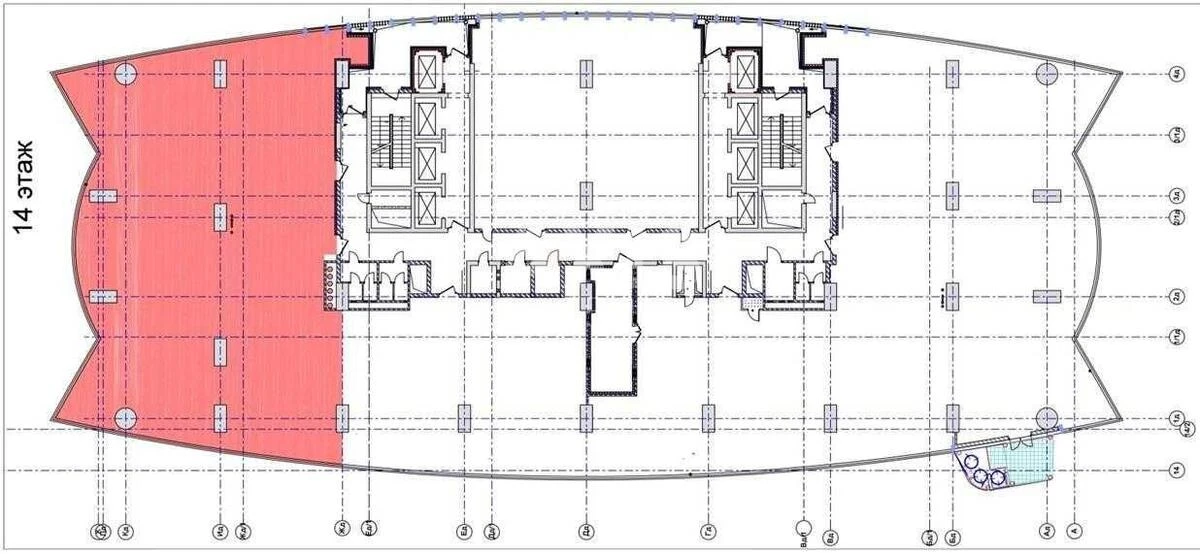
Этаж
14 Этаж
Этажность
33 этажный дом
Общая площадь
446 м2
Общее состояние
С ремонтом
Цена:
818 554 грн.
18 900 USD
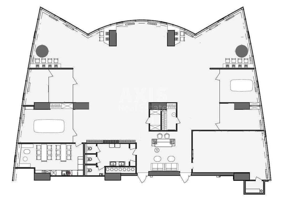
Описание объекта

Офисное помещение. Высокие потолки (3,6 м) и впечатляющий панорамный вид из окон придают особую атмосферу вашему офису. Безопасность объекта обеспечена современными системами охраны, сигнализации и видеонаблюдения, а также круглосуточной охраной. Бизнес-центр «Гулливер» оборудован системами дымоудаления, пожаротушения от ведущих международных производителей, собственной подстанцией для энергоснабжения и мощными генераторами на случай отключения электроэнергии.

Похожие предложения